Back Road, Gorefield (3 Bedroom) Guide Price £419,950 (Freehold) - Ref: 2153
3 3 1
Overview
NEARING COMPLETION

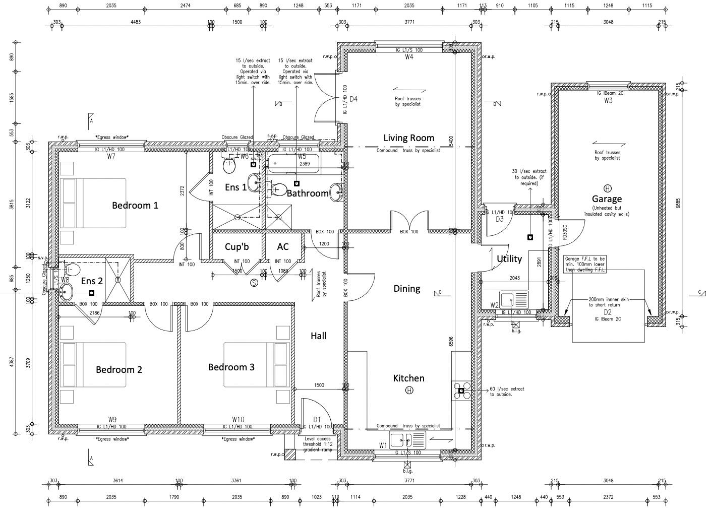
Plot 2 is a detached 3 bedroom, 3 bathroom new build bungalow providing over 1500 sq ft of accommodation with single garage in addition, with off street parking to the front situated in the popular village of Gorefield.

Gorefield, located just outside Wisbech in Cambridgeshire, is a small village that offers a peaceful, rural escape with easy access to the surrounding Fenland countryside. Known for its charming rural atmosphere, it’s ideal for those looking for a slower pace of life while still being close to larger towns and amenities. The village is steeped in local history, with its church, St. Peter's, dating back to the 14th century, providing a glimpse into the area’s heritage.
The village’s proximity to Wisbech, a market town with a rich history, means residents can easily access shops, cafes, and cultural attractions like the Wisbech & Fenland Museum.
Gorefield is well-connected by road, making it a convenient location for commuting to Peterborough, Cambridge, or the Norfolk coast. With its tranquil surroundings and a close-knit community, Gorefield is perfect for those seeking a quiet, rural retreat with convenient access to both nature and urban amenities. While small, it’s a village that balances traditional charm with modern-day convenience.

Built to a very high standard with underfloor heating throughout it offers modern open plan kitchen/dining area, living room to the rear overlooking the large rear garden, utility room with door into garage, 3 bedrooms with ensuite to master bedroom and 2nd bedroom, and family bathroom.
Situated on a new build development site of 38 new homes, this property is available in the first phase, and will be ready from Summer 2025. Built by a reputable local builder with over 25 years experience in the building industry this property has been built to a high standard and offers the perfect space.

Generously sized rear garden
10 year warranty
Off Street parking for 2 cars
Heated by air source heat pump
Underfloor heating throughout
Mains Water, Electric and Drainage
Local amenities and schools in close proximity
Vacant possession on completion
Property Ref : 2153
Photographs
Floorplans
Print this Property
Property Details
Kitchen Fitted with a matching range of base & eye level units. Appliances are Integrated. Kitchen/Dining Room. Underfloor heating. Windows to front. Living room Reception Room. Underfloor heating. Patio door. Door to garden. Windows to rear. Utility room Fitted with a matching range of base units. Underfloor heating. Space and plumbing for washing machine. Space and plumbing for tumble dryer. Door to rear. Windows to front. Bedroom One En-suite Shower Room. Master Bedroom. Underfloor heating. Windows to rear. En-suite shower room Bedroom Two Double Bedroom. En-suite Shower Room. Underfloor heating. Windows to front. En-suite shower room Bedroom Three Double Bedroom. Underfloor heating. Windows to front. Bathroom Fitted with a three piece suite. Heated towel rail.
Additonal Information
Tenure: Freehold
EPC Rating: ?
Council Tax Band: Not Currently Known
Max. Broadband Speed (estimated): 75 Mbps
Mains Gas: No
Mains Water: Yes
Mains Drainage: Yes
Mains Electricity: Yes
Property Reference: 2153
GDPR: By submitting an enquiry, you consent to your information being shared with the seller of this property or the agent representing the property. Your details will only be used to respond to your enquiry and arrange viewings or provide further information.
Property Questionnaire
Tenure
All information in this property questionnaire has been provided by the vendor.
Freehold
Leasehold
Share of Freehold
Estate Management Charge (where applicable)
Lease Details:
Ground Rent
Service charge
Start Date
Duration
years
Is the Freehold owned by the Resident Association?
No
Yes
Are you aware of any impending increases?
No
Yes
Previous year's service charge?
Is the property shared ownership?
No
Yes
Who owns the freehold?
What percentage share of the property are you selling?
%
What rent do you pay for the balance?
per annum
Services
Map View
Street View
Local Info
None
All
Dentist
Doctor
Hospital
Train
Bus
Cemetery
Cinema
Gym
Bar
Restaurant
Supermarket
Energy Performance Certificate
The full EPC chart is available either by contacting the office number listed below, or by downloading the Property Brochure
Energy Efficency Rating
CURRENT
?
(0)
POTENTIAL
?
(0)
Energy Efficency Rating
Current
Potential
(92+)
A
(81 to 91)
B
(69 to 80)
C
(55 to 68)
D
(39 to 54)
E
(21 to 38)
F
(1 to 20)
G
0
0
England & Wales
EU Directive 2002/91/EC
The energy efficiency rating is a measure of the overall efficiency of a home. The higher the rating the more energy efficient the home is and the lower the fuel bills will be.
Part of.. "Back Road"
This spacious brand new executive 4 bedroom house will be ready to move in end of 2023.
Back Road
Brochure
Professional Contact Request Close

If you are a company representative or professional wishing to contact the vendor of this property in relation on an on-going sale, simply complete the form below. Please note that all communication is monitored and logged. No unsolicited contact is permitted.

  Request Contact
Cancel
Logging your message..
Your message and contact details have been forwarded to the Seller.
  Continue
Oops! Please try again.
  Try Again
Share this Property! Close
Back Road, Gorefield (3 Bedroom) Share with all of your friends & followers using the social media options above, or with a single friend using the form below
  Share
Cancel
By clicking send you agree to our privacy policy?
Sending your friend an email..
Success! Please ask your friend to check their email.
  Continue
Oops! Please try again, or contact us and we will send your friend a printed brochure.
  Try Again
Get in Touch! Close

Have a question? Send the Seller a message and let you know when they reply

  Send
Cancel
Sending your message..
We will let you know when the Seller replies
  Continue
Oops! Please try again.
  Try Again
Book a Viewing Cancel
FORM HERE
Thursday 21st January
7:30pm > 8:00pm
Requesting your viewing..
Your appointment has been requested, but requires confirmation by the property representitive.
Thursday 21st January
7:30pm > 8:00pm
Your appointment has been confirmed.
Thursday 21st January
7:30pm > 8:00pm
We couldn't secure that appointment. Please try selecting an alternative date / time.
Continue
Back
Confirm
Continue
Back
Request a Brochure Close
Back Road To receive a PDF brocure for Back Road, simply fill in your details below.
  Request
Cancel
By clicking submit you agree to our privacy policy?
Sending your request..
Many thanks. Your brochure download link for Back Road should arrive in your inbox shortly.
  Continue
Oops! Please try again, or contact us using the details below.
  Try Again
Mortgage Calculator Close