Castle View Court, Sheriff Hutton (Middleton House) £895,950 (Freehold) - Ref: 1838
5 2 3
Overview
**PART EXCHANGE CONSIDERED**

Final Plot Remaining - Book your viewing today to appreciate all that this home has to offer.

- Air Source Heat Pump
- Solar Panels
- Underfloor Heating
- EV Charger
- Designer Shaker Kitchen with Bosch Applicances
- Designer Wetroom Bathrooms with Large Format Tiling
- Landscaped Wrap Around Gardens
- 5 Double Bedrooms
- Large Open Plan Kitchen/Living/Dining Room
- 3 Further Reception Rooms
- Large Detached Double Garage with Powered, Insulated Door
- En-suite and Dressing Room To Master Bedroom
- Full landscaped gardens including wildflower section
- Stunning Views of Sheriff Hutton Castle

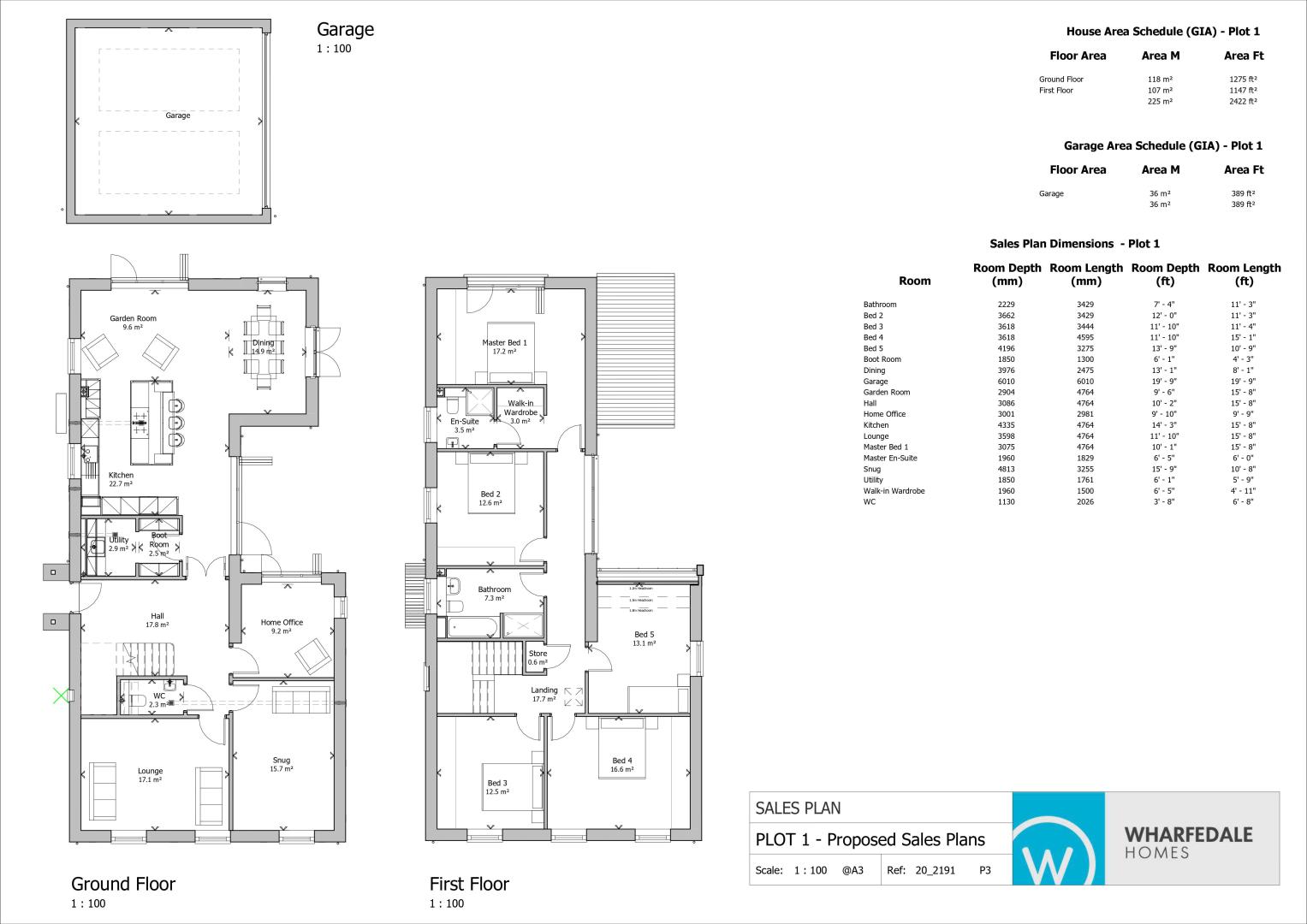
LAYOUT
This magnificient, energy efficient new-build homes spans over 2,400 sqft of living accomodation comprising five double bedrooms with an ensuite, walk-in wardrobe and Juliet balcony to the master bedroom.

The ground floor features a large, light and airy open-plan kitchen/dining/garden room with three sets of doors opening onto the generous gardens. There is a handy, separate utility room and boot room accessed from a spacious entrance hallway. There is also a separate living room, a snug/playroom, a large home office with french doors and a downstairs WC. Outside there is a larger than average, detached double garage with associated parking for multiple cars and enclosed, landscaped wrap-around gardens featuring wildflower planting.

SPECIFICATION
This is an energy efficient home has a projected EPC A rating, which will result in lower energy bills. The home also features an air source heat pump, underfloor heating to the ground floor, energy-saving solar panels and a wall mounted EV charger.

The home is built to the highest standard and finished to an exceptional specification that exceeds expectations of new-build homes. Just a few examples of this include, a designer shaker-style kitchen with larder unit, waterfall Quartz worktops, Bosch appliances including an integrated full height fridge and freezer, integrated double ovens and dishwasher, along with a modern, stylish bathrooms with designer, large format, full height



Property Ref : 1838
Photographs
Floorplans
Print this Property
Additonal Information
Tenure: Freehold
EPC Rating: ?
Council Tax Band: Not Currently Known
Internal Area: 225.00 Square Feet
Max. Broadband Speed (estimated): 1000 Mbps
Mains Gas: No
Mains Water: Yes
Mains Drainage: Yes
Mains Electricity: Yes
Property Reference: 1838
GDPR: By submitting an enquiry, you consent to your information being shared with the seller of this property or the agent representing the property. Your details will only be used to respond to your enquiry and arrange viewings or provide further information.
Property Questionnaire
Tenure
All information in this property questionnaire has been provided by the vendor.
Freehold
Leasehold
Share of Freehold
Estate Management Charge (where applicable)
Lease Details:
Ground Rent
Service charge
Start Date
Duration
years
Is the Freehold owned by the Resident Association?
No
Yes
Are you aware of any impending increases?
No
Yes
Previous year's service charge?
Is the property shared ownership?
No
Yes
Who owns the freehold?
What percentage share of the property are you selling?
%
What rent do you pay for the balance?
per annum
Services
Map View
Street View
Local Info
None
All
Dentist
Doctor
Hospital
Train
Bus
Cemetery
Cinema
Gym
Bar
Restaurant
Supermarket
Energy Performance Certificate
The full EPC chart is available either by contacting the office number listed below, or by downloading the Property Brochure
Energy Efficency Rating
CURRENT
?
(0)
POTENTIAL
?
(0)
Energy Efficency Rating
Current
Potential
(92+)
A
(81 to 91)
B
(69 to 80)
C
(55 to 68)
D
(39 to 54)
E
(21 to 38)
F
(1 to 20)
G
0
0
England & Wales
EU Directive 2002/91/EC
The energy efficiency rating is a measure of the overall efficiency of a home. The higher the rating the more energy efficient the home is and the lower the fuel bills will be.
Part of.. "Castle View Court"
Castle View Court offers a stunning collection of six luxury new homes built to exacting standards with high-specification internal and external features.
Professional Contact Request Close

If you are a company representative or professional wishing to contact the vendor of this property in relation on an on-going sale, simply complete the form below. Please note that all communication is monitored and logged. No unsolicited contact is permitted.

  Request Contact
Cancel
Logging your message..
Your message and contact details have been forwarded to the Seller.
  Continue
Oops! Please try again.
  Try Again
Share this Property! Close
Castle View Court, Sheriff Hutton (Middleton House) Share with all of your friends & followers using the social media options above, or with a single friend using the form below
  Share
Cancel
By clicking send you agree to our privacy policy?
Sending your friend an email..
Success! Please ask your friend to check their email.
  Continue
Oops! Please try again, or contact us and we will send your friend a printed brochure.
  Try Again
Get in Touch! Close

Have a question? Send the Seller a message and let you know when they reply

  Send
Cancel
Sending your message..
We will let you know when the Seller replies
  Continue
Oops! Please try again.
  Try Again
Book a Viewing Cancel
FORM HERE
Thursday 21st January
7:30pm > 8:00pm
Requesting your viewing..
Your appointment has been requested, but requires confirmation by the property representitive.
Thursday 21st January
7:30pm > 8:00pm
Your appointment has been confirmed.
Thursday 21st January
7:30pm > 8:00pm
We couldn't secure that appointment. Please try selecting an alternative date / time.
Continue
Back
Confirm
Continue
Back
Request a Brochure Close
Castle View Court To receive a PDF brocure for Castle View Court, simply fill in your details below.
  Request
Cancel
By clicking submit you agree to our privacy policy?
Sending your request..
Many thanks. Your brochure download link for Castle View Court should arrive in your inbox shortly.
  Continue
Oops! Please try again, or contact us using the details below.
  Try Again
Mortgage Calculator Close