Eastfield Road, Thurmaston, Leicester Guide Price £252,000 (Freehold) - Ref: 2360
2 1 1
Overview
SOLD BY MODERN METHOD OF AUCTION.

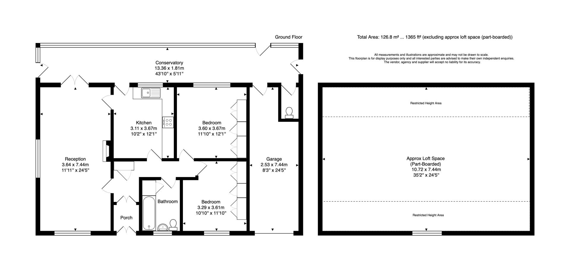
A rare opportunity to acquire this spacious two-bedroom dormer bungalow, set on an impressive double plot along Eastfield Road in Thurmaston. Coming to the market for the first time in almost 50 years, the home offers exceptional potential for renovation, extension, and development (STPP).

The property benefits from off-road parking and a garage to the side, as well as a generous mature garden that has been lovingly maintained.

Inside, the accommodation briefly comprises:
• Large dual-aspect lounge/diner with electric fireplace, offering plenty of natural light and ample space for both seating and dining areas overlooking the rear garden.
• Breakfast kitchen with tiled flooring, a range of wall and base units, space for appliances, dining table, and the combi boiler (fitted in 2020).
• Bedroom One – front aspect, fitted storage, carpeted, space for a double bed.
• Bedroom Two – rear aspect, fitted wardrobes, carpeted, ideal double bedroom.
• Family bathroom – tiled, with bathtub, WC, WHB, and airing cupboard.

Additional features include:
• Garage with extra storage, perfect for use as a workshop or additional storage space.
• Dormer loft space, offering fantastic scope to convert into further bedrooms or living accommodation (STPP).
• Expansive rear and side gardens, beautifully maintained with lawns, greenhouse, mature shrubs, and planting.

This property offers enormous potential to extend to the rear and upwards (STPP), making it an exciting project for buyers looking to create their dream home in a sought-after Thurmaston location.

A viewing is strongly recommended to fully appreciate the vast plot and potential this property has. Register your interest today for the auction!

This property is for sale by Modern Method of Auction allowing the buyer and seller to complete within a 56 Day Reservation
Period. Interested parties’ personal data will be shared with the Auctioneer (iamsold Ltd).
If considering a mortgage, inspect and consider the property carefully with your lender before bidding. A Buyer Information
Pack is provided, which you must view before bidding. The buyer is responsible for the Pack fee. For the most recent
information on the Buyer Information Pack fee, please contact the iamsold team.
The buyer signs a Reservation Agreement and makes payment of a Non-Refundable Reservation Fee of 4.5% of the purchase
price inc VAT, subject to a minimum of £6,600 inc. VAT. This Fee is paid to reserve the property to the buyer during the
Reservation Period and is paid in addition to the purchase price. The Fee is considered within calculations for stamp duty.
Services may be recommended by the Agent/Auctioneer in which they will receive payment from the service provider if the
service is taken. Payment varies but will be no more than £960 inc. VAT. These services are optional.
Property Ref : 2360
Photographs
Floorplans
Print this Property
Additonal Information
Tenure: Freehold
EPC Rating: ?
Council Tax Band: D
Internal Area: 126.80 Square Metres
Council Tax Rate (Standard): £2,338
Max. Broadband Speed (estimated): 1000 Mbps
Mains Gas: Yes
Mains Water: Yes
Mains Drainage: Yes
Mains Electricity: Yes
Property Reference: 2360
GDPR: By submitting an enquiry, you consent to your information being shared with the seller of this property or the agent representing the property. Your details will only be used to respond to your enquiry and arrange viewings or provide further information.
Property Questionnaire
Tenure
All information in this property questionnaire has been provided by the vendor.
Freehold
Leasehold
Share of Freehold
Lease Details:
Ground Rent
Service charge
Start Date
Duration
years
Is the Freehold owned by the Resident Association?
No
Yes
Are you aware of any impending increases?
No
Yes
Previous year's service charge?
Is the property shared ownership?
No
Yes
Who owns the freehold?
What percentage share of the property are you selling?
%
What rent do you pay for the balance?
per annum
Services
Map View
Street View
Local Info
None
All
Dentist
Doctor
Hospital
Train
Bus
Cemetery
Cinema
Gym
Bar
Restaurant
Supermarket
Energy Performance Certificate
The full EPC chart is available either by contacting the office number listed below, or by downloading the Property Brochure
Energy Efficency Rating
CURRENT
?
(0)
POTENTIAL
?
(0)
Energy Efficency Rating
Current
Potential
(92+)
A
(81 to 91)
B
(69 to 80)
C
(55 to 68)
D
(39 to 54)
E
(21 to 38)
F
(1 to 20)
G
0
0
England & Wales
EU Directive 2002/91/EC
The energy efficiency rating is a measure of the overall efficiency of a home. The higher the rating the more energy efficient the home is and the lower the fuel bills will be.
Professional Contact Request Close

If you are a company representative or professional wishing to contact the agent of this property in relation on an on-going sale, simply complete the form below. Please note that all communication is monitored and logged. No unsolicited contact is permitted.

  Request Contact
Cancel
Logging your message..
Your message and contact details have been forwarded to the Seller.
  Continue
Oops! Please try again.
  Try Again
Share this Property! Close
Eastfield Road, Thurmaston, Leicester Share with all of your friends & followers using the social media options above, or with a single friend using the form below
  Share
Cancel
By clicking send you agree to our privacy policy?
Sending your friend an email..
Success! Please ask your friend to check their email.
  Continue
Oops! Please try again, or contact us and we will send your friend a printed brochure.
  Try Again
Get in Touch! Close

Have a question? Send the Seller a message and let you know when they reply

  Send
Cancel
Sending your message..
We will let you know when the Seller replies
  Continue
Oops! Please try again.
  Try Again
Book a Viewing Cancel
FORM HERE
Thursday 21st January
7:30pm > 8:00pm
Requesting your viewing..
Your appointment has been reserved, but requires confirmation by the vendor.
Thursday 21st January
7:30pm > 8:00pm
Your appointment has been confirmed.
Thursday 21st January
7:30pm > 8:00pm
We couldn't secure that appointment. Please try selecting an alternative date / time.
Continue
Back
Confirm
Continue
Back
Mortgage Calculator Close