Perseverance Road, Birstall, Leicester Offers over £325,000 (Freehold) - Ref: 2818
2 1 3
Overview
Situated between the highly sought-after Roman Road and Birstall Road, just moments from Watermead Country Park, this spacious detached bungalow offers an impressive amount of flexible living space, thoughtfully designed to suit a variety of lifestyles.

Benefitting from gas central heating, double glazing, and an integral single garage, the property boasts a superbly presented interior with a welcoming entrance porch, grand hallway, WC, generous lounge, dining room, conservatory, breakfast room, handmade kitchen, two bedrooms, shower room, and a beautifully maintained rear garden. Ideally located, it is within easy walking distance of excellent local amenities.

Accommodation

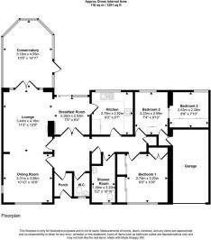
Entrance Porch
UPVC front door, tiled flooring, and glazed oak-framed internal door leading into the hallway.

Entrance Hall
A spacious and inviting hallway with tiled flooring and access to the majority of rooms.

Guest WC
Fitted with a contemporary two-piece suite comprising a low flush WC and a wash hand basin.

Dining Room
A generously proportioned room with ample space for a large dining table and chairs, with windows to both the front and side elevations. Finished with Karndean flooring, which flows seamlessly into the lounge.

Lounge
Open plan to the dining and breakfast rooms, this impressive lounge features a central double-sided log burner and French doors leading directly into the conservatory.

Conservatory
A superb addition with a brick base, UPVC windows, apex roof, and French doors opening to the garden.

Breakfast Room
Enjoying the warmth of the log burner shared with the lounge, Karndean flooring, and sliding patio doors opening onto a Mediterranean-style covered tiled patio.

Kitchen
A stunning handmade timber kitchen with granite worktops, Belfast double sink, built-in electric oven, hob, extractor, and dishwasher. With a rear-facing window and access to both the breakfast room and hallway.

Bedroom One
A spacious double bedroom with fitted sliding door wardrobes and front-facing window.

Shower Room
Beautifully fitted with a modern three-piece suite comprising a walk-in shower, wash hand basin, and WC.

Bedroom Two
Flexible in layout, formed of two sections—ideal as a bedroom with an additional study area. Includes direct access to the garage.

Outside

To the front, a neat garden and driveway provide access to the integral garage. The rear garden is a manageable size, featuring a pond, lawn, shed, shrubs, and a delightful Mediterranean-style covered patio—perfect for outdoor entertaining.

Location

Birstall is a highly popular village just outside Leicester, offering a wide range of shops, supermarkets, and schools. The scenic Watermead Country Park is only a short stroll away. At the same time, Leicester city centre—with its excellent retail, dining, and cultural amenities—is just a short drive or bus ride. Leicester train station offers direct services to London St Pancras, and the area is well-connected by the A6, A50, A563, M1, and M69. The Skylink bus route to East Midlands Airport is also within walking distance.
Property Ref : 2818
Photographs
Floorplans
Print this Property
Additonal Information
Tenure: Freehold
EPC Rating: D
Council Tax Band: D
Internal Area: 116.00 Square Metres
Council Tax Rate (Standard): £2,328
Max. Broadband Speed (estimated): 1000 Mbps
Mains Gas: Yes
Mains Water: Yes
Mains Drainage: Yes
Mains Electricity: Yes
Property Reference: 2818
GDPR: By submitting an enquiry, you consent to your information being shared with the seller of this property or the agent representing the property. Your details will only be used to respond to your enquiry and arrange viewings or provide further information.
Property Questionnaire
Tenure
All information in this property questionnaire has been provided by the vendor.
Freehold
Leasehold
Share of Freehold
Lease Details:
Ground Rent
Service charge
Start Date
Duration
years
Is the Freehold owned by the Resident Association?
No
Yes
Are you aware of any impending increases?
No
Yes
Previous year's service charge?
Is the property shared ownership?
No
Yes
Who owns the freehold?
What percentage share of the property are you selling?
%
What rent do you pay for the balance?
per annum
Services
Map View
Street View
Local Info
None
All
Dentist
Doctor
Hospital
Train
Bus
Cemetery
Cinema
Gym
Bar
Restaurant
Supermarket
Energy Performance Certificate
The full EPC chart is available either by contacting the office number listed below, or by downloading the Property Brochure
Energy Efficency Rating
CURRENT
D
(68)
POTENTIAL
B
(83)
Energy Efficency Rating
Current
Potential
(92+)
A
(81 to 91)
B
(69 to 80)
C
(55 to 68)
D
(39 to 54)
E
(21 to 38)
F
(1 to 20)
G
68
83
England & Wales
EU Directive 2002/91/EC
The energy efficiency rating is a measure of the overall efficiency of a home. The higher the rating the more energy efficient the home is and the lower the fuel bills will be.
Professional Contact Request Close

If you are a company representative or professional wishing to contact the agent of this property in relation on an on-going sale, simply complete the form below. Please note that all communication is monitored and logged. No unsolicited contact is permitted.

  Request Contact
Cancel
Logging your message..
Your message and contact details have been forwarded to the Seller.
  Continue
Oops! Please try again.
  Try Again
Share this Property! Close
Perseverance Road, Birstall, Leicester Share with all of your friends & followers using the social media options above, or with a single friend using the form below
  Share
Cancel
By clicking send you agree to our privacy policy?
Sending your friend an email..
Success! Please ask your friend to check their email.
  Continue
Oops! Please try again, or contact us and we will send your friend a printed brochure.
  Try Again
Get in Touch! Close

Have a question? Send the Seller a message and let you know when they reply

  Send
Cancel
Sending your message..
We will let you know when the Seller replies
  Continue
Oops! Please try again.
  Try Again
Book a Viewing Cancel
FORM HERE
Thursday 21st January
7:30pm > 8:00pm
Requesting your viewing..
Your appointment has been reserved, but requires confirmation by the vendor.
Thursday 21st January
7:30pm > 8:00pm
Your appointment has been confirmed.
Thursday 21st January
7:30pm > 8:00pm
We couldn't secure that appointment. Please try selecting an alternative date / time.
Continue
Back
Confirm
Continue
Back
Mortgage Calculator Close