Campion Way, Thurnby, Leicester Offers over £340,000 (Freehold) - Ref: 2365
3 2 1
Overview
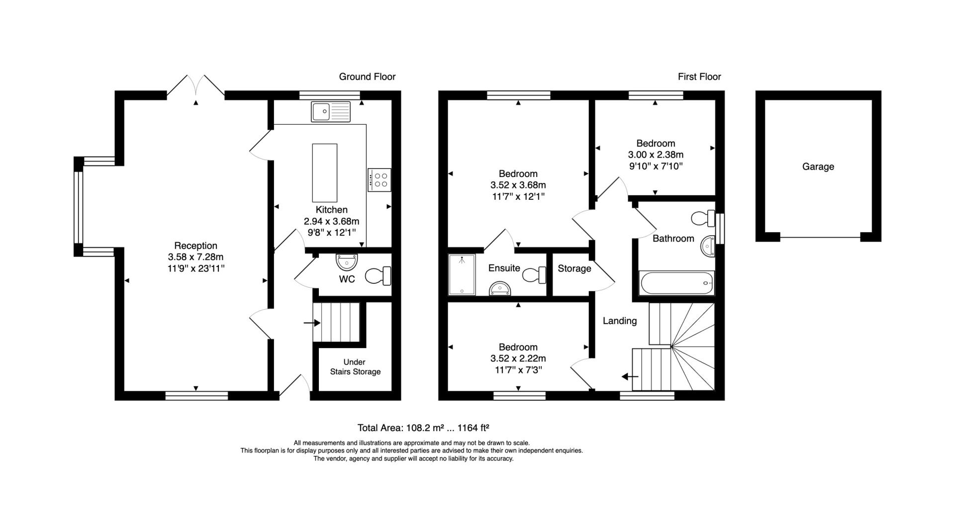
Located in the popular Leicestershire area of Thurnby, this beautifully presented three-bedroom detached home sits on a private corner plot and offers stylish, contemporary living. Built around six years ago by the well-regarded Jelson Homes, the property is known as The Linnet and has been exceptionally well maintained by the current owners.

The ground floor features a spacious dual-aspect lounge and dining room, filled with natural light thanks to multiple windows and French doors that open directly onto the rear garden. Spanning almost 24 feet long, this versatile space is ideal for relaxing and entertaining, with ample room for large sofas and a family dining area.

The modern kitchen enjoys views of the leafy rear garden and offers a well-designed space for cooking and everyday living. It is fitted with wood-effect worktops and stylish grey wall and base units, along with integrated appliances including an Electrolux dishwasher, washer/dryer, fridge freezer, AEG fan-assisted oven, and a four-burner gas hob.

To the rear of the property is a generously sized garden, mainly laid to lawn and bordered by mature shrubs for privacy. A charming wooden-style gazebo, added by the current owners, creates a perfect spot to enjoy sunsets and summer evening meals outdoors.

The home also benefits from a spacious garage, complete with power and lighting, offering excellent potential for conversion into a home office, gym, or workshop. Alternatively, it provides ample storage or secure parking. A private driveway offers additional off-road parking for one vehicle.

Upstairs, the main bedroom overlooks the front of the property and comfortably accommodates a double bed, bedside units, dressing table, and freestanding wardrobes. It also boasts a modern en-suite shower room with a tiled shower cubicle, thermostatic shower, WC, and wash hand basin.

The second bedroom is also a well-proportioned double, with views to the front and plenty of space for wardrobes and other furniture. The third bedroom, overlooking the rear, is perfect as a nursery, home office, or guest room.

The family bathroom is fully tiled and comprises a WC, wash hand basin, and bathtub with a thermostatic shower over, glass screen, and heated towel rail.

This is a rare opportunity to purchase a move-in-ready, detached home in a peaceful and desirable location, not overlooked and full of natural light and charm. If you're looking for a property that combines modern style with practical living, this home is a must-see.
Property Ref : 2365
Photographs
Floorplans
Print this Property
Additonal Information
Tenure: Freehold
EPC Rating: B
Council Tax Band: D
Internal Area: 92.00 Square Feet
Council Tax Rate (Standard): £2,325
Max. Broadband Speed (estimated): 1000 Mbps
Mains Gas: Yes
Mains Water: Yes
Mains Drainage: Yes
Mains Electricity: Yes
Property Reference: 2365
GDPR: By submitting an enquiry, you consent to your information being shared with the seller of this property or the agent representing the property. Your details will only be used to respond to your enquiry and arrange viewings or provide further information.
Property Questionnaire
Tenure
All information in this property questionnaire has been provided by the vendor.
Freehold
Leasehold
Share of Freehold
Estate Management Charge (where applicable)
Lease Details:
Ground Rent
Service charge
Start Date
Duration
years
Is the Freehold owned by the Resident Association?
No
Yes
Are you aware of any impending increases?
No
Yes
Previous year's service charge?
Is the property shared ownership?
No
Yes
Who owns the freehold?
What percentage share of the property are you selling?
%
What rent do you pay for the balance?
per annum
Services
Map View
Street View
Local Info
None
All
Dentist
Doctor
Hospital
Train
Bus
Cemetery
Cinema
Gym
Bar
Restaurant
Supermarket
Energy Performance Certificate
The full EPC chart is available either by contacting the office number listed below, or by downloading the Property Brochure
Energy Efficency Rating
CURRENT
B
(82)
POTENTIAL
?
(93)
Energy Efficency Rating
Current
Potential
(92+)
A
(81 to 91)
B
(69 to 80)
C
(55 to 68)
D
(39 to 54)
E
(21 to 38)
F
(1 to 20)
G
82
93
England & Wales
EU Directive 2002/91/EC
The energy efficiency rating is a measure of the overall efficiency of a home. The higher the rating the more energy efficient the home is and the lower the fuel bills will be.
Professional Contact Request Close

If you are a company representative or professional wishing to contact the agent of this property in relation on an on-going sale, simply complete the form below. Please note that all communication is monitored and logged. No unsolicited contact is permitted.

  Request Contact
Cancel
Logging your message..
Your message and contact details have been forwarded to the Seller.
  Continue
Oops! Please try again.
  Try Again
Share this Property! Close
Campion Way, Thurnby, Leicester Share with all of your friends & followers using the social media options above, or with a single friend using the form below
  Share
Cancel
By clicking send you agree to our privacy policy?
Sending your friend an email..
Success! Please ask your friend to check their email.
  Continue
Oops! Please try again, or contact us and we will send your friend a printed brochure.
  Try Again
Get in Touch! Close

Have a question? Send the Seller a message and let you know when they reply

  Send
Cancel
Sending your message..
We will let you know when the Seller replies
  Continue
Oops! Please try again.
  Try Again
Book a Viewing Cancel
FORM HERE
Thursday 21st January
7:30pm > 8:00pm
Requesting your viewing..
Your appointment has been requested, but requires confirmation by the property representitive.
Thursday 21st January
7:30pm > 8:00pm
Your appointment has been confirmed.
Thursday 21st January
7:30pm > 8:00pm
We couldn't secure that appointment. Please try selecting an alternative date / time.
Continue
Back
Confirm
Continue
Back
Mortgage Calculator Close