This property is not currently listed.
Farnham Grove, Bushby, Leicester Offers over £340,000 (Freehold) - Ref: 2587
3 2 1
Overview
Welcome to 'The Heywood' – A Stunning Detached Family Home on the Sought-After Bushby Fields Development

Built in late 2019 by the renowned Bloor Homes, 'The Heywood' is a beautifully presented three-bedroom detached property located on the highly desirable Bushby Fields development. As you enter this attractive new community, you're immediately met with what are arguably some of the best countryside views in the county.

Situated on a generous plot to the left as you enter the development, this home has been tastefully decorated and thoughtfully updated by the current owners. The property benefits from a spacious driveway with parking for at least three vehicles and a single garage.

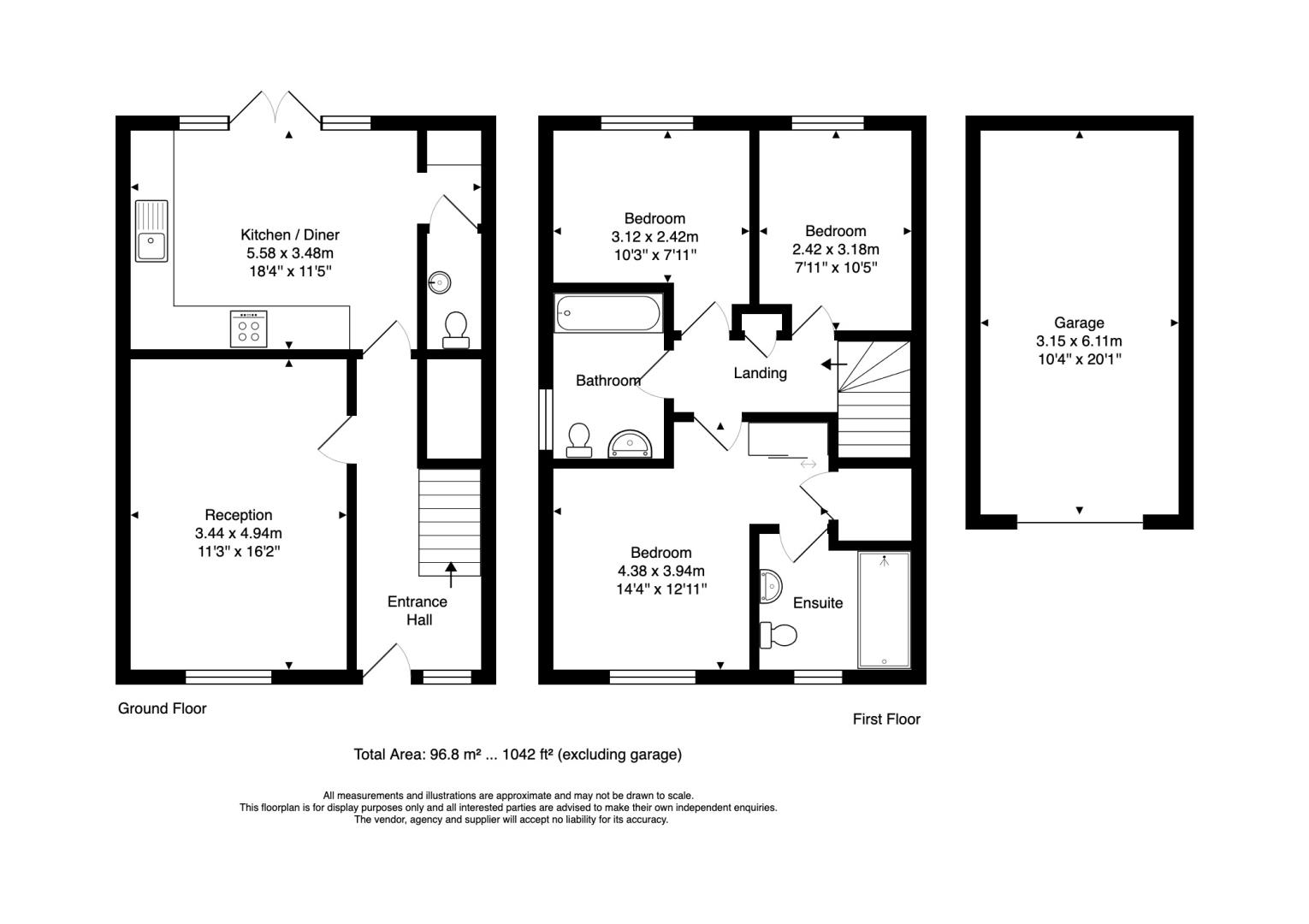
Step inside and you'll find a welcoming hallway leading to a bright and spacious living room, perfect for family movie nights. This stylish space features elegant wall panelling on the feature wall, adding warmth and character.

Continue through to the modern family kitchen, complete with tiled flooring, induction hob, electric fan-assisted oven, and a built-in fridge-freezer. There's ample room for a dining table that overlooks the landscaped rear garden, making it an ideal space for entertaining. The kitchen also boasts soft-close wall and base units, under-cabinet lighting, and generous storage throughout.

Adjoining the kitchen is a practical utility area with space for a washing machine and dryer, as well as a convenient downstairs WC fitted with a wash hand basin and toilet.

Upstairs, you'll find three well-proportioned bedrooms. Bedroom One, which overlooks the front of the property, is generously sized to comfortably accommodate a large bed, bedside units, wardrobes, and a dresser. It also benefits from a lovely en-suite shower room, adding a touch of luxury to everyday living. Bedroom Two and Bedroom Three overlook the rear of the house and enjoy stunning, elevated views of the surrounding countryside, making them ideal as peaceful sleeping spaces, a home office, nursery, or dressing room.

The family bathroom is bright and airy, featuring a bathtub with overhead thermostatic shower, WC, and wash hand basin.

Step outside into the fenced, lawned rear garden, an ideal space for children to play, summer BBQs, or relaxing family gatherings in the sunshine.

Not directly overlooked to the front and enjoying breathtaking countryside views to the rear, this property combines modern comfort, stylish design, and peaceful surroundings.

Located just off Uppingham Road in Bushby, the home is well-connected with excellent motorway links, highly regarded schools, and places of worship nearby.

If you're seeking a modern, move-in-ready family home in a fantastic location, early viewing is highly recommended.

Book your viewing today – and come and experience everything ‘The Heywood’ has to offer.
Property Ref : 2587
Photographs
Floorplans
Print this Property
Additonal Information
Tenure: Freehold
EPC Rating: B
Council Tax Band: D
Internal Area: 90.00 Square Feet
Council Tax Rate (Standard): £2,310
Max. Broadband Speed (estimated): 1800 Mbps
Mains Gas: Yes
Mains Water: Yes
Mains Drainage: Yes
Mains Electricity: Yes
Property Reference: 2587
GDPR: By submitting an enquiry, you consent to your information being shared with the seller of this property or the agent representing the property. Your details will only be used to respond to your enquiry and arrange viewings or provide further information.
Property Questionnaire
Tenure
All information in this property questionnaire has been provided by the vendor.
Freehold
Leasehold
Share of Freehold
Estate Management Charge (where applicable)
Lease Details:
Ground Rent
Service charge
Start Date
Duration
years
Is the Freehold owned by the Resident Association?
No
Yes
Are you aware of any impending increases?
No
Yes
Previous year's service charge?
Is the property shared ownership?
No
Yes
Who owns the freehold?
What percentage share of the property are you selling?
%
What rent do you pay for the balance?
per annum
Services
Map View
Street View
Local Info
None
All
Dentist
Doctor
Hospital
Train
Bus
Cemetery
Cinema
Gym
Bar
Restaurant
Supermarket
Energy Performance Certificate
The full EPC chart is available either by contacting the office number listed below, or by downloading the Property Brochure
Energy Efficency Rating
CURRENT
B
(83)
POTENTIAL
?
(94)
Energy Efficency Rating
Current
Potential
(92+)
A
(81 to 91)
B
(69 to 80)
C
(55 to 68)
D
(39 to 54)
E
(21 to 38)
F
(1 to 20)
G
83
94
England & Wales
EU Directive 2002/91/EC
The energy efficiency rating is a measure of the overall efficiency of a home. The higher the rating the more energy efficient the home is and the lower the fuel bills will be.
Professional Contact Request Close

If you are a company representative or professional wishing to contact the agent of this property in relation on an on-going sale, simply complete the form below. Please note that all communication is monitored and logged. No unsolicited contact is permitted.

  Request Contact
Cancel
Logging your message..
Your message and contact details have been forwarded to the Seller.
  Continue
Oops! Please try again.
  Try Again
Share this Property! Close
Farnham Grove, Bushby, Leicester Share with all of your friends & followers using the social media options above, or with a single friend using the form below
  Share
Cancel
By clicking send you agree to our privacy policy?
Sending your friend an email..
Success! Please ask your friend to check their email.
  Continue
Oops! Please try again, or contact us and we will send your friend a printed brochure.
  Try Again
Get in Touch! Close

Have a question? Send the Seller a message and let you know when they reply

  Send
Cancel
Sending your message..
We will let you know when the Seller replies
  Continue
Oops! Please try again.
  Try Again
Book a Viewing Cancel
FORM HERE
Thursday 21st January
7:30pm > 8:00pm
Requesting your viewing..
Your appointment has been requested, but requires confirmation by the property representitive.
Thursday 21st January
7:30pm > 8:00pm
Your appointment has been confirmed.
Thursday 21st January
7:30pm > 8:00pm
We couldn't secure that appointment. Please try selecting an alternative date / time.
Continue
Back
Confirm
Continue
Back
Mortgage Calculator Close