Overview
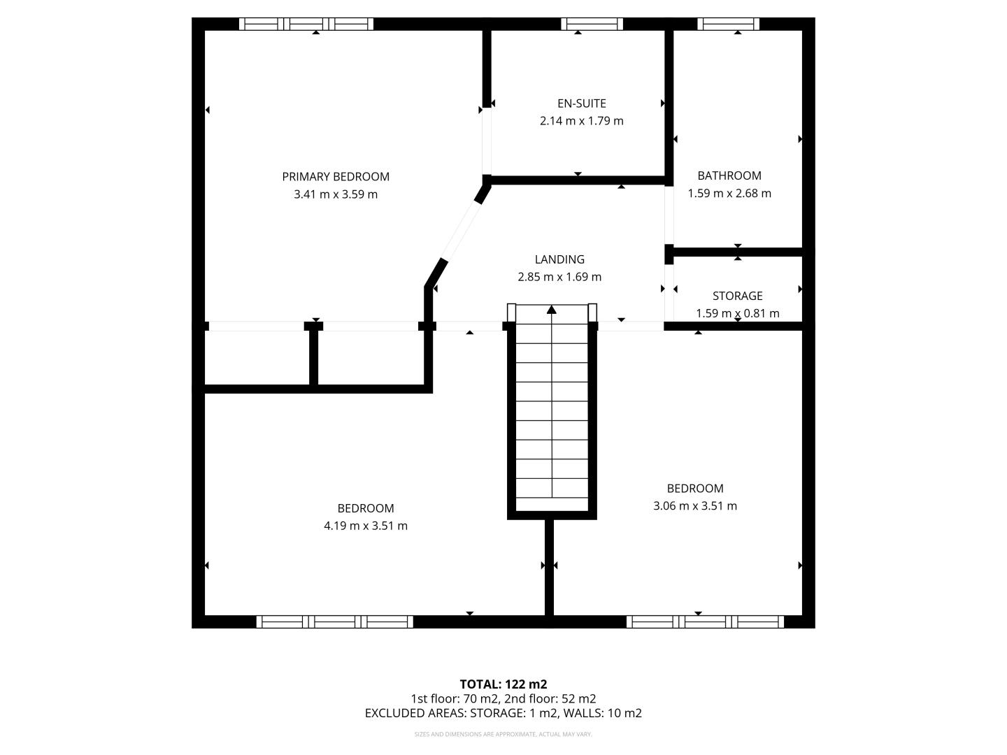
Originally purchased off-plan in 2002, the current owners moved into number 3 when only two homes had been built on Rushmoor Close, and it has been a much-loved family home ever since.<br/><br/>Now beautifully established with mature trees and local wildlife, the property sits within a true family estate of traditional stone-built homes.<br/><br/>This particular house enjoys a lovely position on the estate, set well back from the main road where things feel quieter and more peaceful, and closer to the walks leading onto Goodshawfold Lane. Positioned on a small cul-de-sac branching off Meadows Drive, the home sits elevated with spectacular views stretching across to Hameldon Hill.<br/><br/>It’s a joy to see the story of family life, enjoyed throughout the years, reflected through some of the interiors, with playful and personal touches that show this home has been a happy place for many years.<br/><br/>These details reflect what this home has always been — a much-loved family house where children grew up, memories were made, and every room played its part in family life. It now presents a wonderful opportunity to bring your own style and ideas to the interiors while enjoying the strong foundations of a well-built home in a fantastic position.<br/><br/>Internally, the home offers flexible space that has adapted to family life over the years. The former garage has been converted and is currently used as a fourth bedroom, providing useful additional living space (buyers are advised to make their own enquiries regarding any relevant approvals associated with the conversion). The kitchen flows through to a conservatory that enjoys views out to the garden, both benefiting from the comfort of underfloor heating. Practical features also include a downstairs W/C and a useful utility area, helping to keep everyday family life organised.<br/><br/>Outside, the garden provides a generous family space with several sections that can be enjoyed in different ways throughout the seasons — whether relaxing, entertaining or giving children space to play. To the front, the property also benefits from a driveway providing off-road parking for two cars.<br/><br/>Loveclough forms part of the parish of Goodshaw, on the outskirts of Crawshawbooth, where you’ll find local shops, cafés and bus stops conveniently located at the end of the street. The house is also less than a 10-minute drive from Rawtenstall, offering easy access to motorway links, supermarkets and an abundance of boutiques, restaurants, bars and markets.<br/><br/>Rawtenstall itself continues to benefit from ongoing investment and regeneration, with improvements to the town centre and surrounding areas helping to create an increasingly vibrant destination for shopping, dining and community events.<br/><br/>We also like to shout about the brilliant bus route we have here in Rossendale — the Manchester Witchway X43 bus, which runs from Burnley through Crawshawbooth, Rawtenstall and Prestwich straight into Manchester, currently costing just £6 return. It’s a fantastic option for commuters who would prefer not to drive.<br/><br/>With the highly regarded Crawshawbooth Primary School (a feeder school to BRGS) less than a five-minute walk away — either via the main road or a beautiful countryside walk down Goodshawfold Lane — the property is also close to numerous nurseries and high schools in Rawtenstall.<br/><br/>You are truly spoilt when it comes to an active lifestyle in Loveclough and the surrounding villages. There are plenty of gyms and countryside walks, including routes literally from your doorstep — from behind the estate onto Goodshawfold Lane and across the moors beyond, towards landmarks such as the Singing Ringing Tree over Crown Point and The Halo above Haslingden. Rossendale also offers numerous cycling trails, children's parks, beautiful neighbouring towns and a thriving local arts community.<br/><br/>Countryside, views, community, amenities, schools and history… this property ticks so many boxes.<br/><br/>I would love to personally show you around next weekend, 20th–22nd Ma
Freehold
Generous Family Garden
Converted Garage to extra living space
A Stunning View
Views of the countryside
Viewing Weekend 20th - 22nd March
Underfloor Heating in Kitchen and Conservatory
Country Walk Location
Don't miss the video