Burnley Road East, Rossendale OIRO £170,000 (Leasehold) - Ref: 2737
3 1 1
Overview
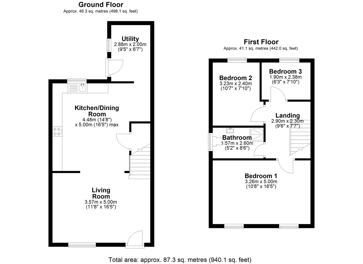
This home has been recently refreshed with a brand new carpet to the living space and lino in the bathroom. It offers three good-sized bedrooms, a huge kitchen with adjoining utility, under-stairs storage, and a bright reception room which flows into the kitchen.

The reception room is bright, and spacious with its high ceilings and big front window. The open plan arrangement is perfect for relaxing or hosting friends. The kitchen offers ample space for cooking and dining, while the utility room keeps everything practical and tidy. Upstairs, the bedrooms are light and spacious, and the master front-facing bedroom enjoys views out to the countryside.

There are ample local amenities such as shops, a gym and a local community center offering everything from classes to social events. The nearby schools include St Anne’s C of E Primary, St Peter’s RC Primary (Outstanding) Water Primary School and the highly regarded Bacup & Rawtenstall Grammar School, with Alder Grange and Haslingden High also within easy reach.

For lovers of the outdoors, the Rossendale Valley is right on your doorstep, with walks, cycle trails, and parks just minutes away.

This stone-built end terrace sits in a fantastic location on Burnley Road East, perfectly positioned for anyone who wants the best of both worlds: countryside living with excellent access to local towns and motorway links. Rawtenstall is just 9 minutes away, with its shops, cafés, restaurants, and thriving market, while Burnley is only 11 minutes in the other direction with quick access to the M65. For commuters, Manchester is easily accessible via the M66, making this a highly practical choice without compromising on lifestyle.

This property is perfect for a wide range of buyers, first-time buyers, families, or those looking to downsize without losing space.

***View this weekend by appointment only - it's the last weekend of September already!! Now is the time to view to offer if you want the best chance of securing a home for Christmas***
Property Ref : 2737
Video
Photographs
Floorplans
Print this Property
Additonal Information
Tenure: Leasehold
Lease: 874 years remain of the 999 year lease
Ground Rent: £1 Per Annum
Service Charge: £0 Per Annum
EPC Rating: D
Council Tax Band: A
Council Tax Rate (Standard): £1,616
Max. Broadband Speed (estimated): 10000 Mbps
Mains Gas: Yes
Mains Water: Yes
Mains Drainage: Yes
Mains Electricity: Yes
Property Reference: 2737
GDPR: By submitting an enquiry, you consent to your information being shared with the seller of this property or the agent representing the property. Your details will only be used to respond to your enquiry and arrange viewings or provide further information.
Property Questionnaire
Tenure
All information in this property questionnaire has been provided by the vendor.
Freehold
Leasehold
Share of Freehold
Lease Details:
Ground Rent
Service charge
Start Date
Duration
years
Is the Freehold owned by the Resident Association?
No
Yes
Are you aware of any impending increases?
No
Yes
Previous year's service charge?
Is the property shared ownership?
No
Yes
Who owns the freehold?
What percentage share of the property are you selling?
%
What rent do you pay for the balance?
per annum
Services
Map View
Street View
Local Info
None
All
Dentist
Doctor
Hospital
Train
Bus
Cemetery
Cinema
Gym
Bar
Restaurant
Supermarket
Energy Performance Certificate
The full EPC chart is available either by contacting the office number listed below, or by downloading the Property Brochure
Energy Efficency Rating
CURRENT
D
(65)
POTENTIAL
C
(80)
Energy Efficency Rating
Current
Potential
(92+)
A
(81 to 91)
B
(69 to 80)
C
(55 to 68)
D
(39 to 54)
E
(21 to 38)
F
(1 to 20)
G
65
80
England & Wales
EU Directive 2002/91/EC
The energy efficiency rating is a measure of the overall efficiency of a home. The higher the rating the more energy efficient the home is and the lower the fuel bills will be.
Professional Contact Request Close

If you are a company representative or professional wishing to contact the agent of this property in relation on an on-going sale, simply complete the form below. Please note that all communication is monitored and logged. No unsolicited contact is permitted.

  Request Contact
Cancel
Logging your message..
Your message and contact details have been forwarded to the Seller.
  Continue
Oops! Please try again.
  Try Again
Share this Property! Close
Burnley Road East, Rossendale Share with all of your friends & followers using the social media options above, or with a single friend using the form below
  Share
Cancel
By clicking send you agree to our privacy policy?
Sending your friend an email..
Success! Please ask your friend to check their email.
  Continue
Oops! Please try again, or contact us and we will send your friend a printed brochure.
  Try Again
Get in Touch! Close

Have a question? Send the Seller a message and let you know when they reply

  Send
Cancel
Sending your message..
We will let you know when the Seller replies
  Continue
Oops! Please try again.
  Try Again
Book a Viewing Cancel
FORM HERE
Thursday 21st January
7:30pm > 8:00pm
Requesting your viewing..
Your appointment has been reserved, but requires confirmation by the vendor.
Thursday 21st January
7:30pm > 8:00pm
Your appointment has been confirmed.
Thursday 21st January
7:30pm > 8:00pm
We couldn't secure that appointment. Please try selecting an alternative date / time.
Continue
Back
Confirm
Continue
Back
Mortgage Calculator Close