Hales Close, Stratford-upon-Avon Offers over £320,000 (Freehold) - Ref: 2588
3 1 1
Overview
A Hidden Gem in the Heart of Snitterfield – Where Tranquillity Meets Lifestyle

Tucked away along a quiet walkway in the charming village of Snitterfield, this beautifully presented home offers far more than just bricks and mortar — it offers a lifestyle many dream of but few attain.

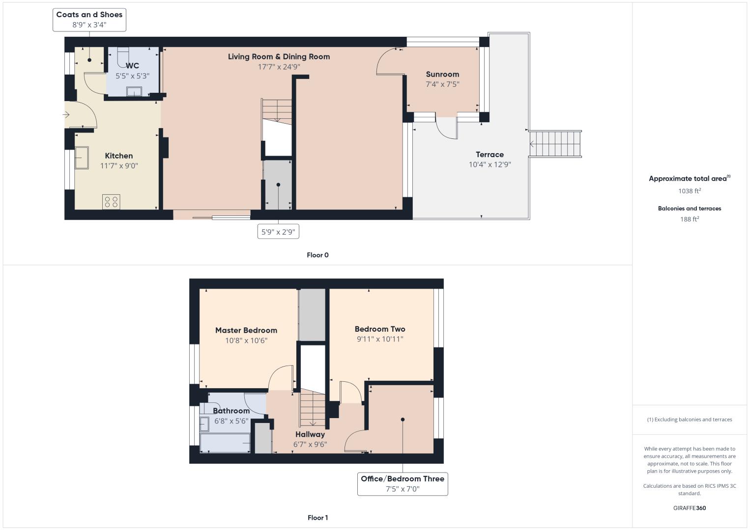
Step through the front door and you’re immediately greeted by a sense of flow and harmony. The bright, contemporary kitchen, finished in a sleek white design, opens seamlessly into a spacious dining room, bathed in natural light and offering effortless access to the private patio beyond — perfect for leisurely breakfasts, weekend entertaining, or watching the sunset with a glass in hand.

The open staircase draws the eye upwards and guides you into a light-filled lounge with a generous picture window overlooking the garden. This calming space wraps around into a cosy conservatory, ideal as a reading nook, a peaceful work-from-home spot, or simply a quiet retreat at the end of the day.

Upstairs, you’ll find two generous double bedrooms, a spacious single, and a recently refurbished bathroom complete with a modern three-piece suite and shower over the bath — stylish, fresh, and ready to enjoy.

Outside, the approach to the property offers a true sense of privacy, with no passing traffic and only a gentle walkway leading to the front door. It feels like your own peaceful corner of the world.

But what truly sets this home apart is its setting. Snitterfield is a rare find — a village that feels alive, welcoming, and wonderfully connected.

Spend summer evenings gazing at the stars from your garden – the skies here are breathtaking. Walk across the road to the annual music festival at the sports club, pop along to the village cinema or café at the Town Hall, or join one of the many classes or community events on offer. There’s yoga on Mondays, friendly neighbours to greet you on your walks, and a well-stocked village shop for those last-minute ingredients.

Just a short drive (or a beautiful hour’s walk) brings you into the heart of Stratford-upon-Avon. Whether it’s browsing Maybird’s shops, wandering past Shakespeare’s house, or catching last-minute tickets at the RSC for just £10, life here is as cultured as it is peaceful.

Add in the delightful farm shop, welcoming local pub, sightings of deer and hedgehogs, and even fishing lakes and rivers nearby, and it’s easy to see why homes here are so rarely available.

This is more than a move — it’s a step into a lifestyle that balances countryside calm with community spirit and culture.
Opportunities like this don’t come around often in Snitterfield.

Book your viewing now to avoid disappointment — and come and experience the magic for yourself.
Property Ref : 2588
Virtual Tour
Video
Photographs
Floorplans
Print this Property
Additonal Information
Tenure: Freehold
EPC Rating: D
Council Tax Band: C
Council Tax Rate (Standard): £2,115
Max. Broadband Speed (estimated): 1800 Mbps
Mains Gas: Yes
Mains Water: Yes
Mains Drainage: Yes
Mains Electricity: Yes
Property Reference: 2588
GDPR: By submitting an enquiry, you consent to your information being shared with the seller of this property or the agent representing the property. Your details will only be used to respond to your enquiry and arrange viewings or provide further information.
Property Questionnaire
Tenure
All information in this property questionnaire has been provided by the vendor.
Freehold
Leasehold
Share of Freehold
Lease Details:
Ground Rent
Service charge
Start Date
Duration
years
Is the Freehold owned by the Resident Association?
No
Yes
Are you aware of any impending increases?
No
Yes
Previous year's service charge?
Is the property shared ownership?
No
Yes
Who owns the freehold?
What percentage share of the property are you selling?
%
What rent do you pay for the balance?
per annum
Services
Map View
Street View
Local Info
None
All
Dentist
Doctor
Hospital
Train
Bus
Cemetery
Cinema
Gym
Bar
Restaurant
Supermarket
Energy Performance Certificate
The full EPC chart is available either by contacting the office number listed below, or by downloading the Property Brochure
Energy Efficency Rating
CURRENT
D
(68)
POTENTIAL
B
(84)
Energy Efficency Rating
Current
Potential
(92+)
A
(81 to 91)
B
(69 to 80)
C
(55 to 68)
D
(39 to 54)
E
(21 to 38)
F
(1 to 20)
G
68
84
England & Wales
EU Directive 2002/91/EC
The energy efficiency rating is a measure of the overall efficiency of a home. The higher the rating the more energy efficient the home is and the lower the fuel bills will be.
Professional Contact Request Close

If you are a company representative or professional wishing to contact the agent of this property in relation on an on-going sale, simply complete the form below. Please note that all communication is monitored and logged. No unsolicited contact is permitted.

  Request Contact
Cancel
Logging your message..
Your message and contact details have been forwarded to the Seller.
  Continue
Oops! Please try again.
  Try Again
Share this Property! Close
Hales Close, Stratford-upon-Avon Share with all of your friends & followers using the social media options above, or with a single friend using the form below
  Share
Cancel
By clicking send you agree to our privacy policy?
Sending your friend an email..
Success! Please ask your friend to check their email.
  Continue
Oops! Please try again, or contact us and we will send your friend a printed brochure.
  Try Again
Get in Touch! Close

Have a question? Send the Seller a message and let you know when they reply

  Send
Cancel
Sending your message..
We will let you know when the Seller replies
  Continue
Oops! Please try again.
  Try Again
Book a Viewing Cancel
FORM HERE
Thursday 21st January
7:30pm > 8:00pm
Requesting your viewing..
Your appointment has been reserved, but requires confirmation by the vendor.
Thursday 21st January
7:30pm > 8:00pm
Your appointment has been confirmed.
Thursday 21st January
7:30pm > 8:00pm
We couldn't secure that appointment. Please try selecting an alternative date / time.
Continue
Back
Confirm
Continue
Back
Mortgage Calculator Close