Overview
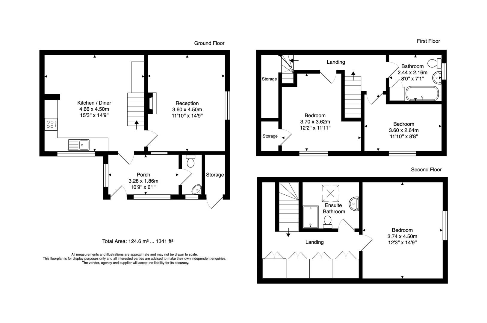
Set on a quiet, private road in the heart of Walton, Lutterworth, this charming three-storey character cottage sits proudly on a corner plot, perfectly blending period features with modern living. Owned by the current vendors for the past seven years, the home has been thoughtfully updated throughout, offering move-in-ready accommodation while retaining its timeless character.<br/><br/>On entry, a welcoming porch provides clever utility space with integrated washing machines and dryers, along with a convenient downstairs WC.<br/><br/>The kitchen/diner is a true hub of the home – finished to a modern standard with wood flooring, soft-closing wall and base units, fitted dishwasher, integrated fridge/freezer and microwave, and ample space for a large dining table. A range of tall fitted cupboards provides excellent storage, currently housing small appliances such as the coffee machine and toaster – keeping the worktops clear and uncluttered. Perfect for both family meals and entertaining guests.<br/><br/>The living room exudes character with exposed beams, fitted cupboards and shelving with LED lighting, window shutters, and a beautiful stained-glass feature. A large log burner creates a cosy focal point, making this an inviting space for relaxing with family and friends.<br/><br/>On the first floor, you’ll find a versatile double bedroom/study overlooking the front, a second bedroom currently used as a nursery with bespoke storage, and a stylish family bathroom complete with a stand-alone bathtub, vanity unit, towel heater, and striking deep blue panelling.<br/><br/>The top floor houses a stunning master suite with exposed beams, space for a dressing area, and shutters framing the windows. The landing has been transformed into a feature space with fitted storage and shelving with LED lighting, enjoying views across the nearby farmer’s fields. A contemporary en-suite completes the floor, boasting a black-framed double shower with raindrop head and recessed shelving.<br/><br/>Outside, a private courtyard garden provides the ideal setting for summer BBQs and entertaining, with the bonus of multiple outdoor electricity points. To the side, there is a handy storage shed, while to the front of the home, you’ll find off-road parking for 3–4 vehicles.<br/><br/>Walton itself is a small and sought-after village, home to the popular Dog & Gun pub, surrounded by neighbouring countryside walks, and just a short drive to Husbands Bosworth, Market Harborough, Rugby and Leicester, with excellent access to the M1 and M6. Families will appreciate the fantastic local schools, which boast strong OFSTED ratings, including Gilmorton Chandler Church of England Primary School and St Andrew’s Church of England Primary School.<br/><br/>This is a one-off, rare opportunity to purchase such a fabulously finished home in an extremely popular location. A viewing is truly recommended to appreciate the stunning finish and charm of this character-rich cottage.<br/><br/><br/>Additional Information:<br/><br/>Council tax - D<br/>EV Charger Included<br/>Electricity - £300PCM including EV Charging - Octopus Energy - smart meter <br/>Broadband - BT Internet - 16 MB/s
Charming Three-Storey Character Cottage On A Corner Plot
Welcoming Porch With Utility Space, Appliances & Downstairs WC
Modern Kitchen/Diner With Tall Fitted Cupboards & Integrated Appliances
Cosy Living Room With Exposed Beams, Log Burner & Stained-Glass Feature
Stylish Family Bathroom With Stand-Alone Bathtub & Deep Blue Panelling
Stunning Master Suite With Exposed Beams, Dressing Area & Contemporary En-suite
Private Courtyard Garden With Outdoor Power Points & Storage Shed
Off-Road Parking For 3–4 Vehicles
Sought-After Walton Village Location Near Countryside, Schools & Transport Links