This property has been sold by Hayley Chambers
Laburnum Cottages, Crawshawbooth Offers over £210,000 (Freehold) - Ref: 1950
3 1 2
Overview
Want to feel like you are on vacation everyday if you had the opportunity? Well this could be your opportunity...

That's exactly how I felt when I was sat amongst a meadow of year-round flowers, soaking up the sun in the south-west facing front garden. I was even tempted to pick up the book on the table and immerse myself in the moment as it was too relaxing.

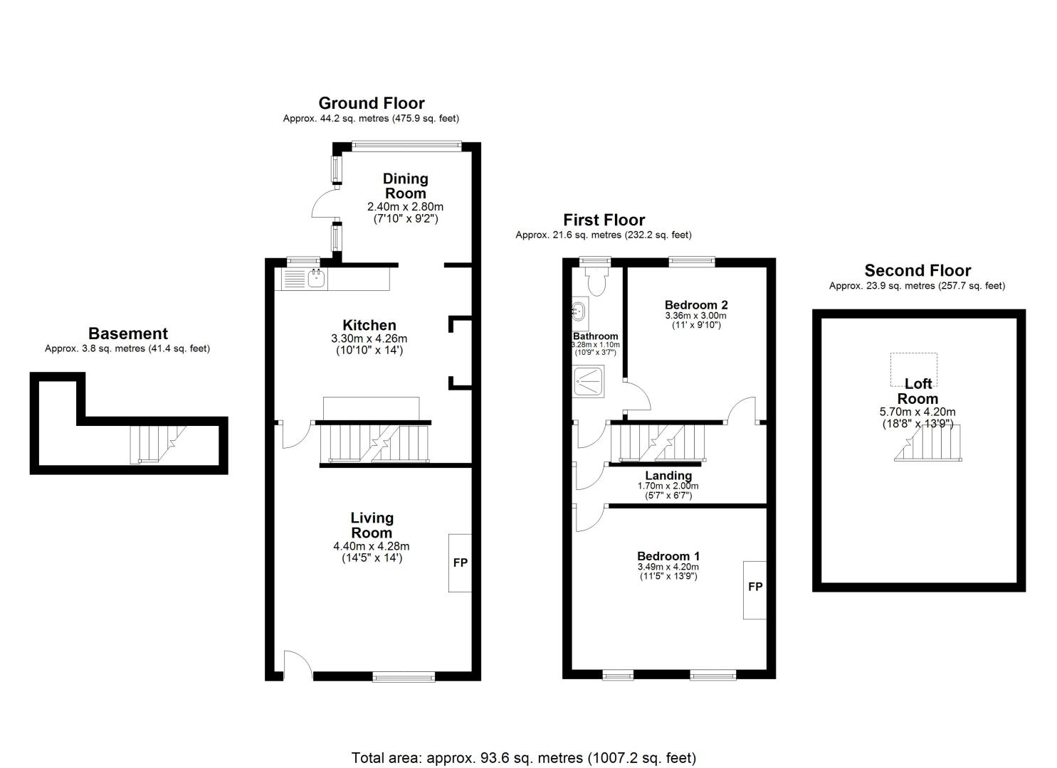
This three bedroom, 1870's property has a way of telling a story. Strolling up the stone path, being welcomed by well-kept gardens and a pretty row of terraces. You approach number 3, a garden full of butterflies and bees with seasonal planting for all-year-round colour, plus a beautiful Laburnum to admire.

Enter into the lounge, cosying up next to a stunning log burner. This room offers plenty of space to add all your homely furnishings, with high ceilings and beautiful wood shelving in the alcoves.

Moving into the bright and open space in the kitchen, the room also offers scope to add more units or even space for a small kitchen island if that's something you've been dreaming of having. It has another feature fireplace that would be a beautiful place for a range or Aga.

The kitchen space flows into a lovely conservatory area at the rear. The sun rises over the back garden in the morning and it’s the perfect spot for coffee and breakfast.

Evening comes and you can enjoy a well-cooked meal, sat in the dining space in the conservatory listening to the magical sounds of barn and tawny owls from the back of the house.

I can't not mention one little perk downstairs that I absolutely adore. The cellar pantry is a cool and rare feature you don't find in many homes. This fantastically quirky element is one of the many features that make this house a home.

Moving upstairs you have three great sized bedrooms that are all very peaceful and private.

The master bedroom at the front has fantastic views of the countryside. You can watch the sun roll over the hills lighting up the farmer's fields in the morning out of the two large windows. The room also has a beautiful feature fireplace.

The rear bedroom fits a double bed, has a built in cupboard in the alcove for wardrobe space or storage, plus a chest of drawers. With nothing overlooking you, this bedroom is also very private.

The third bedroom is the attic room which is an original part of the building and is a fantastic size. It comprises a staircase, eaves storage and Velux window.

Crawshawbooth is part of the parish of Goodshaw, on the outskirts of Loveclough. The little village has shops only a short walk away, bus stops at the end of the street. The house is less than a 10 minute drive to motorway links and supermarkets and an abundance of boutiques, restaurants, bars, markets and more.

We like to shout about the brilliant bus route that we have here in Rossendale, the Manchester Witchway X43 Bus that is just £3 and runs straight from Burnley through Crawshawbooth, Rawtenstall, Prestwich and straight to Manchester.

With the highly regarded Crawshawbooth Primary School (feeder school to BRGS)
less than a 5 minute walk away, you are also near to numerous Nurseries and High Schools in Rawtenstall.

You are spoilt when it comes to an active lifestyle in Crawshawbooth and the surrounding villages. There are plenty of gyms and country walks, one being literally from your doorstep, from behind the cottages onto Goodshawfold Lane and to the moors beyond. There are many cycle trails in Rossendale and plenty of children's parks, with many other beautiful neighbouring towns. There is also a huge art community.

Countryside, views, a community, amenities, schools, history... This property ticks so many boxes and could become your home.

Agent's Notes:
On Street Parking

Viewings Saturday 10th August. Please call to discuss and please add contact details when enquiring.
Property Ref : 1950
Video
Photographs
Floorplans
Print this Property
Property Details
Shower room Bedroom Conservatory Garden Kitchen Living room Master bathroom Store Pantry. Study/bedroom
Additonal Information
Tenure: Freehold
EPC Rating: D
Council Tax Band: A
Council Tax Rate (Standard): £1,542
Max. Broadband Speed (estimated): 1000 Mbps
Mains Gas: Yes
Mains Water: Yes
Mains Drainage: Yes
Mains Electricity: Yes
Property Reference: 1950
GDPR: By submitting an enquiry, you consent to your information being shared with the seller of this property or the agent representing the property. Your details will only be used to respond to your enquiry and arrange viewings or provide further information.
Property Questionnaire
Tenure
All information in this property questionnaire has been provided by the vendor.
Freehold
Leasehold
Share of Freehold
Estate Management Charge (where applicable)
Lease Details:
Ground Rent
Service charge
Start Date
Duration
years
Is the Freehold owned by the Resident Association?
No
Yes
Are you aware of any impending increases?
No
Yes
Previous year's service charge?
Is the property shared ownership?
No
Yes
Who owns the freehold?
What percentage share of the property are you selling?
%
What rent do you pay for the balance?
per annum
Services
Map View
Street View
Local Info
None
All
Dentist
Doctor
Hospital
Train
Bus
Cemetery
Cinema
Gym
Bar
Restaurant
Supermarket
Energy Performance Certificate
The full EPC chart is available either by contacting the office number listed below, or by downloading the Property Brochure
Energy Efficency Rating
CURRENT
D
(59)
POTENTIAL
C
(80)
Energy Efficency Rating
Current
Potential
(92+)
A
(81 to 91)
B
(69 to 80)
C
(55 to 68)
D
(39 to 54)
E
(21 to 38)
F
(1 to 20)
G
59
80
England & Wales
EU Directive 2002/91/EC
The energy efficiency rating is a measure of the overall efficiency of a home. The higher the rating the more energy efficient the home is and the lower the fuel bills will be.
Professional Contact Request Close

If you are a company representative or professional wishing to contact the agent of this property in relation on an on-going sale, simply complete the form below. Please note that all communication is monitored and logged. No unsolicited contact is permitted.

  Request Contact
Cancel
Logging your message..
Your message and contact details have been forwarded to the Seller.
  Continue
Oops! Please try again.
  Try Again
Share this Property! Close
Laburnum Cottages, Crawshawbooth Share with all of your friends & followers using the social media options above, or with a single friend using the form below
  Share
Cancel
By clicking send you agree to our privacy policy?
Sending your friend an email..
Success! Please ask your friend to check their email.
  Continue
Oops! Please try again, or contact us and we will send your friend a printed brochure.
  Try Again
Get in Touch! Close

Have a question? Send the Seller a message and let you know when they reply

  Send
Cancel
Sending your message..
We will let you know when the Seller replies
  Continue
Oops! Please try again.
  Try Again
Book a Viewing Cancel
FORM HERE
Thursday 21st January
7:30pm > 8:00pm
Requesting your viewing..
Your appointment has been requested, but requires confirmation by the property representitive.
Thursday 21st January
7:30pm > 8:00pm
Your appointment has been confirmed.
Thursday 21st January
7:30pm > 8:00pm
We couldn't secure that appointment. Please try selecting an alternative date / time.
Continue
Back
Confirm
Continue
Back
Mortgage Calculator Close