This property is not currently listed.
Lea End Lane, Birmingham Offers over £675,000 (Freehold) - Ref: 2673
4 4 2
Overview
Coombe Cottage – A Countryside Home with a Heart

Tucked away in a peaceful rural setting, Coombe Cottage is a semi-detached home full of charm, space, and soul. With four bedrooms and four bathrooms — two of which are en-suite — this home offers a thoughtful layout that works beautifully for both growing families and those seeking multi-generational living.

From the moment you approach the gated entrance, you get a sense that this is no ordinary property. The driveway, which comfortably accommodates up to eight vehicles, is flanked by manicured lawns and enhanced with a CCTV security system that covers both the front and rear. Accessed via Wi-Fi, the system adds reassurance without intruding on the home’s welcoming warmth.

To the right of the driveway stands a separate outbuilding with stylish glazed doors. Currently set up as a home gym, this versatile space could just as easily become a quiet office, studio, games room, or creative retreat — tailored entirely to your lifestyle.

Step inside the glazed front door, and you’re welcomed into a beautifully flowing living space. The open-plan lounge and dining area offers a sociable heart to the home. It’s where the current owners have gathered around the fireplace at Christmas, enjoyed lazy Sunday lunches, and flung open the patio doors in summer to let in the countryside air. This home has been filled with warmth, laughter, and shared memories — and it shows.

Beyond the dining area, the kitchen and orangery blend seamlessly to form a striking, light-filled space. The kitchen is handmade, with hidden white goods and integrated appliances including a dishwasher, fridge freezer, microwave, and even a coffee machine. A Belfast sink and range cooker complete the look, all finished with Corian worktops and oak flooring that extends into the orangery — an extension added over seven years ago, which now forms the heart of the home.

Designed to be both beautiful and practical, the property also includes a utility room that keeps laundry and clutter neatly tucked away, preserving the home’s clean, cohesive aesthetic.

Step out from the orangery onto the patio and into the garden — compact yet wonderfully low maintenance. Though modest in size, the current owners have rented additional adjoining land from a local farmer, providing the option for expansion if desired. The garden’s biggest treasure, however, is the view: endless, rolling hills that shift with the seasons, yet never lose their charm. Whether you’re sipping wine on a summer evening or watching the rain fall from the comfort of the orangery, it’s a view that soothes the soul.

A second reception room sits on the ground floor, accessed just off the main lounge. With its own door to the driveway, this light-filled space — complete with floor-to-ceiling windows — is ideal for a home office, snug, or private suite for older children or extended family. There’s also a shower room and space for a study or kitchenette nearby, enhancing its flexibility.

Upstairs, the loft has been converted into a spacious double bedroom, again enjoying those spectacular countryside views. Hidden eaves storage ensures functionality without compromising comfort.

On the first floor, you’ll find three further double bedrooms. The principal suite is a true haven, with chapel-style windows, a luxurious en-suite featuring his and hers sinks, a walk-in shower, deep bathtub, and views so tranquil you’ll never want to close the blinds. Another bedroom also boasts an en-suite, while the main family bathroom is styled with fully tiled walls, a walk-in shower, and contemporary fittings.

The owners have cherished this home for many years — drawn in by its privacy, charmed by its location, and grounded by its balance of peaceful living and practicality. Surrounded by the villages of Alvechurch, Wythall, and Barnt Green, and with schools, supermarkets, and motorway links nearby, Coombe Cottage is ideally placed for rural living without compromise.
Property Ref : 2673
Virtual Tour
Video
Photographs
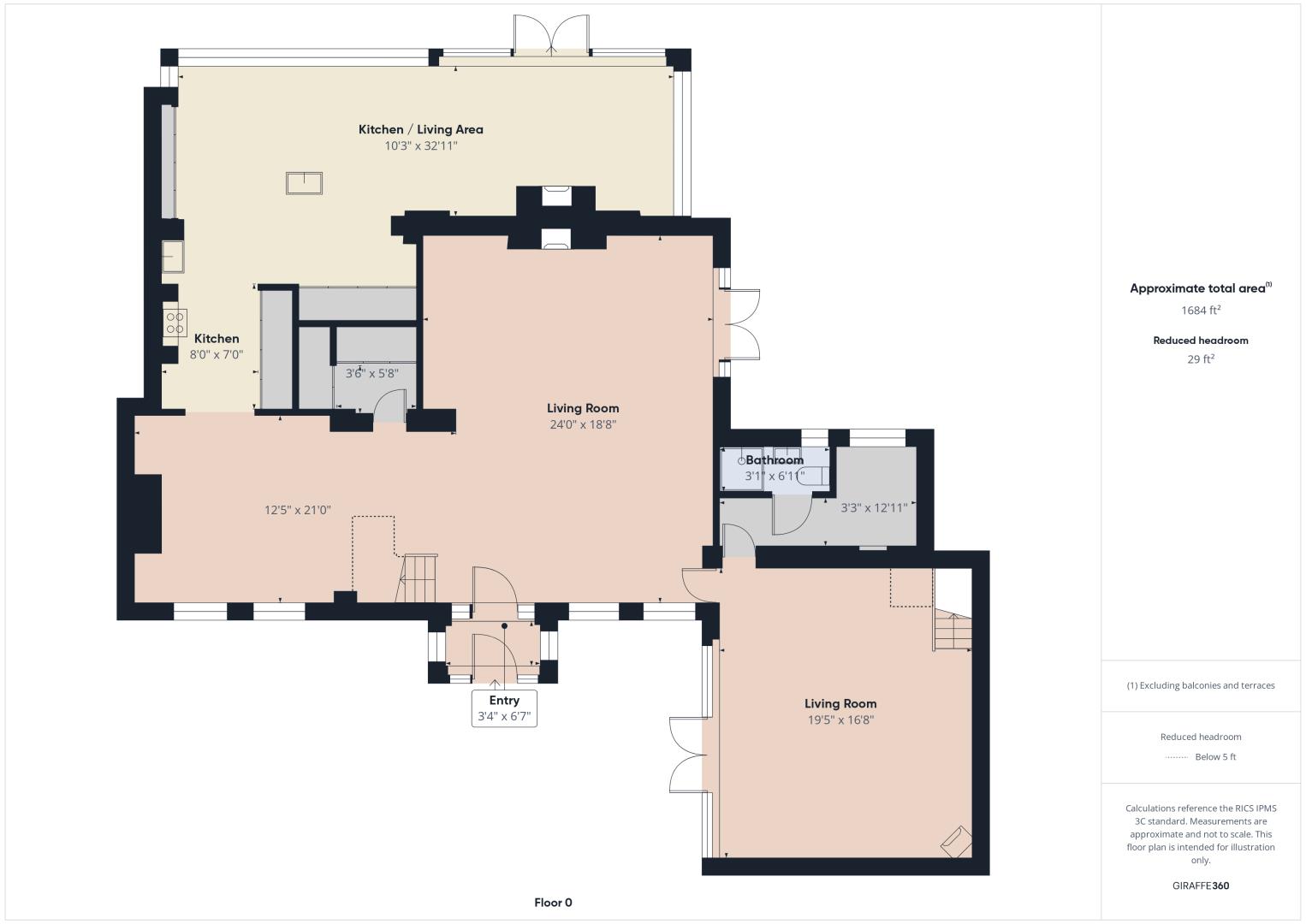
Floorplans
Print this Property
Additonal Information
Tenure: Freehold
EPC Rating: F
Council Tax Band: F
Council Tax Rate (Standard): £3,326
Max. Broadband Speed (estimated): 1800 Mbps
Mains Gas: No
Mains Water: Yes
Mains Drainage: No
Mains Electricity: Yes
Property Reference: 2673
GDPR: By submitting an enquiry, you consent to your information being shared with the seller of this property or the agent representing the property. Your details will only be used to respond to your enquiry and arrange viewings or provide further information.
Property Questionnaire
Tenure
All information in this property questionnaire has been provided by the vendor.
Freehold
Leasehold
Share of Freehold
Estate Management Charge (where applicable)
Lease Details:
Ground Rent
Service charge
Start Date
Duration
years
Is the Freehold owned by the Resident Association?
No
Yes
Are you aware of any impending increases?
No
Yes
Previous year's service charge?
Is the property shared ownership?
No
Yes
Who owns the freehold?
What percentage share of the property are you selling?
%
What rent do you pay for the balance?
per annum
Services
Map View
Street View
Local Info
None
All
Dentist
Doctor
Hospital
Train
Bus
Cemetery
Cinema
Gym
Bar
Restaurant
Supermarket
Energy Performance Certificate
The full EPC chart is available either by contacting the office number listed below, or by downloading the Property Brochure
Energy Efficency Rating
CURRENT
F
(32)
POTENTIAL
E
(50)
Energy Efficency Rating
Current
Potential
(92+)
A
(81 to 91)
B
(69 to 80)
C
(55 to 68)
D
(39 to 54)
E
(21 to 38)
F
(1 to 20)
G
32
50
England & Wales
EU Directive 2002/91/EC
The energy efficiency rating is a measure of the overall efficiency of a home. The higher the rating the more energy efficient the home is and the lower the fuel bills will be.
Professional Contact Request Close

If you are a company representative or professional wishing to contact the agent of this property in relation on an on-going sale, simply complete the form below. Please note that all communication is monitored and logged. No unsolicited contact is permitted.

  Request Contact
Cancel
Logging your message..
Your message and contact details have been forwarded to the Seller.
  Continue
Oops! Please try again.
  Try Again
Share this Property! Close
Lea End Lane, Birmingham Share with all of your friends & followers using the social media options above, or with a single friend using the form below
  Share
Cancel
By clicking send you agree to our privacy policy?
Sending your friend an email..
Success! Please ask your friend to check their email.
  Continue
Oops! Please try again, or contact us and we will send your friend a printed brochure.
  Try Again
Get in Touch! Close

Have a question? Send the Seller a message and let you know when they reply

  Send
Cancel
Sending your message..
We will let you know when the Seller replies
  Continue
Oops! Please try again.
  Try Again
Book a Viewing Cancel
FORM HERE
Thursday 21st January
7:30pm > 8:00pm
Requesting your viewing..
Your appointment has been requested, but requires confirmation by the property representitive.
Thursday 21st January
7:30pm > 8:00pm
Your appointment has been confirmed.
Thursday 21st January
7:30pm > 8:00pm
We couldn't secure that appointment. Please try selecting an alternative date / time.
Continue
Back
Confirm
Continue
Back
Mortgage Calculator Close