Richmond Point, Lytham-St-Annes (The Burlington B) £236,995 (Freehold) - Ref: 4232
3 2 1
Overview
Rowland Homes presents this lovely 3 bedroom semi-detached home has a stylish lounge and an open plan kitchen/dining room with doors leading to the garden. On the ground floor there is also a downstairs WC. On the first floor there is a lovely master bedroom with an en-suite, two further bedrooms & the bathroom. Located close to local amenities.

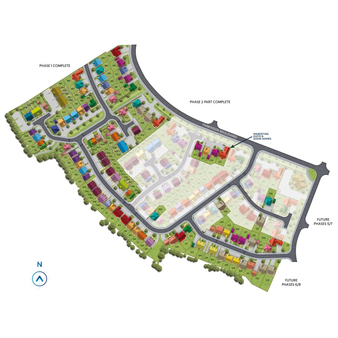
Plots 418 & 419 The Burlington B - Priced at £236,995 (797 Sq Ft)

Visit us Richmond Point, Queensway, Lytham St Annes FY8 3FY

Show Home now open 7 days a week
Monday 10.30am - 4.30pm
Tuesday 10.30am - 5pm
Wednesday 10.30am - 5pm
Thursday 12pm to 5pm
Friday 10.30am to 5pm
Saturday 10.30am to 5.30pm
Sunday 10.30am to 5.30pm

Richmond Point
The latest phase of new homes at Richmond Point showcases a select choice of mews, semi-detached and detached properties ranging from 2-5 bedrooms. Designed to accentuate open spaces, natural features and contemporary aesthetics, Richmond Point provides a desirable lifestyle within a peaceful and private community setting.

Much care and consideration has been given to creating an atmosphere of a mature community that has evolved over time. Properties are carefully designed, and built to include different external elevations of brick and render, individual rooflines and gables, distinctive windows and bays, ensuring that every home has its own personal style and stature.

With exacting attention to detail, Rowland has ensured that property interiors demonstrate the latest trends in modern, contemporary design, whilst airy and light open-plan environments ensure that living areas make maximum use of space to create a truly welcome family environment.

Lytham St Annes
Lytham St Annes, often referred to as the 'Jewel of the Fylde' offers the very best of the good life in Lancashire. A mix of Victorian and Georgian architecture defines the town and its fine and proud history. Community, leisure, relaxation and social activity makes this popular coastal town what it is today. There's an eclectic mix of activities that unites this proud place and makes it special, as well as contributing to its distinctive local identity.

Great schools, upmarket shops, restaurants and bars, traditional pubs, world class golf courses, sports and leisure clubs are all an essential part of life's rich tapestry in this unique and special part of North West England. Not to mention the miles of wide open beaches and the natural beauty of the adjacent colourful countryside, which offers limitless opportunities for walking, cycling, horse riding and relaxing, with an opportunity for local wildlife and habitat to thrive and prosper.

Transport links are excellent, with local neighbours Blackpool and Preston just 10 minutes and 30 minutes' drive away by car or train, respectively. The M55 motorway is only 3.5 miles away and offers easy connection to the M6 at Preston and the wider motorway network beyond.

Richmond Point in Lytham St Annes is a very special place. It's a place for community, a place to feel at home, a place for life and a place quite like no other!

*Available on selected plots. Terms and conditions apply, please ask Sales Executive for details. ^Source HBF ‘Watt a Save’ Report (February 2026)
Property Ref : 4232
Photographs
Floorplans
Print this Property
Additonal Information
Tenure: Freehold
Estate Management Charge: £360 Per Annum
EPC Rating: ?
Council Tax Band: Not Currently Known
Internal Area: 797.00 Square Feet
Max. Broadband Speed (estimated): 1000 Mbps
Mains Gas: Yes
Mains Water: Yes
Mains Drainage: Yes
Mains Electricity: Yes
Property Reference: 4232
GDPR: By submitting an enquiry, you consent to your information being shared with the seller of this property or the agent representing the property. Your details will only be used to respond to your enquiry and arrange viewings or provide further information.
Property Questionnaire
Tenure
All information in this property questionnaire has been provided by the vendor.
Freehold
Leasehold
Share of Freehold
Estate Management Charge (where applicable)
Lease Details:
Ground Rent
Service charge
Start Date
Duration
years
Is the Freehold owned by the Resident Association?
No
Yes
Are you aware of any impending increases?
No
Yes
Previous year's service charge?
Is the property shared ownership?
No
Yes
Who owns the freehold?
What percentage share of the property are you selling?
%
What rent do you pay for the balance?
per annum
Services
Map View
Street View
Local Info
None
All
Dentist
Doctor
Hospital
Train
Bus
Cemetery
Cinema
Gym
Bar
Restaurant
Supermarket
Energy Performance Certificate
The full EPC chart is available either by contacting the office number listed below, or by downloading the Property Brochure
Energy Efficency Rating
CURRENT
?
(0)
POTENTIAL
?
(0)
Energy Efficency Rating
Current
Potential
(92+)
A
(81 to 91)
B
(69 to 80)
C
(55 to 68)
D
(39 to 54)
E
(21 to 38)
F
(1 to 20)
G
0
0
England & Wales
EU Directive 2002/91/EC
The energy efficiency rating is a measure of the overall efficiency of a home. The higher the rating the more energy efficient the home is and the lower the fuel bills will be.
Part of.. "Richmond Point"
Richmond Point is a visionary and prestigious development of new homes.
Professional Contact Request Close

If you are a company representative or professional wishing to contact the vendor of this property in relation on an on-going sale, simply complete the form below. Please note that all communication is monitored and logged. No unsolicited contact is permitted.

  Request Contact
Cancel
Logging your message..
Your message and contact details have been forwarded to the Seller.
  Continue
Oops! Please try again.
  Try Again
Share this Property! Close
Richmond Point, Lytham-St-Annes (The Burlington B) Share with all of your friends & followers using the social media options above, or with a single friend using the form below
  Share
Cancel
By clicking send you agree to our privacy policy?
Sending your friend an email..
Success! Please ask your friend to check their email.
  Continue
Oops! Please try again, or contact us and we will send your friend a printed brochure.
  Try Again
Get in Touch! Close

Have a question? Send the Seller a message and let you know when they reply

  Send
Cancel
Sending your message..
We will let you know when the Seller replies
  Continue
Oops! Please try again.
  Try Again
Book a Viewing Cancel
FORM HERE
Thursday 21st January
7:30pm > 8:00pm
Requesting your viewing..
Your appointment has been requested, but requires confirmation by the property representitive.
Thursday 21st January
7:30pm > 8:00pm
Your appointment has been confirmed.
Thursday 21st January
7:30pm > 8:00pm
We couldn't secure that appointment. Please try selecting an alternative date / time.
Continue
Back
Confirm
Continue
Back
Request a Brochure Close
Richmond Point To receive a PDF brocure for Richmond Point, simply fill in your details below.
  Request
Cancel
By clicking submit you agree to our privacy policy?
Sending your request..
Many thanks. Your brochure download link for Richmond Point should arrive in your inbox shortly.
  Continue
Oops! Please try again, or contact us using the details below.
  Try Again
Mortgage Calculator Close