Whittle Rise, Birch (The Lytham) £339,995 (Freehold) - Ref: 4093
3 2 2
Overview
The Lytham

5% DEPOSIT PAID -

AMTICO FLOORING AND CARPETS INCLUDED AS STANDARD -

RESERVE FOR ONLY £99

3 BEDROOM SEMI-DETACHED HOME

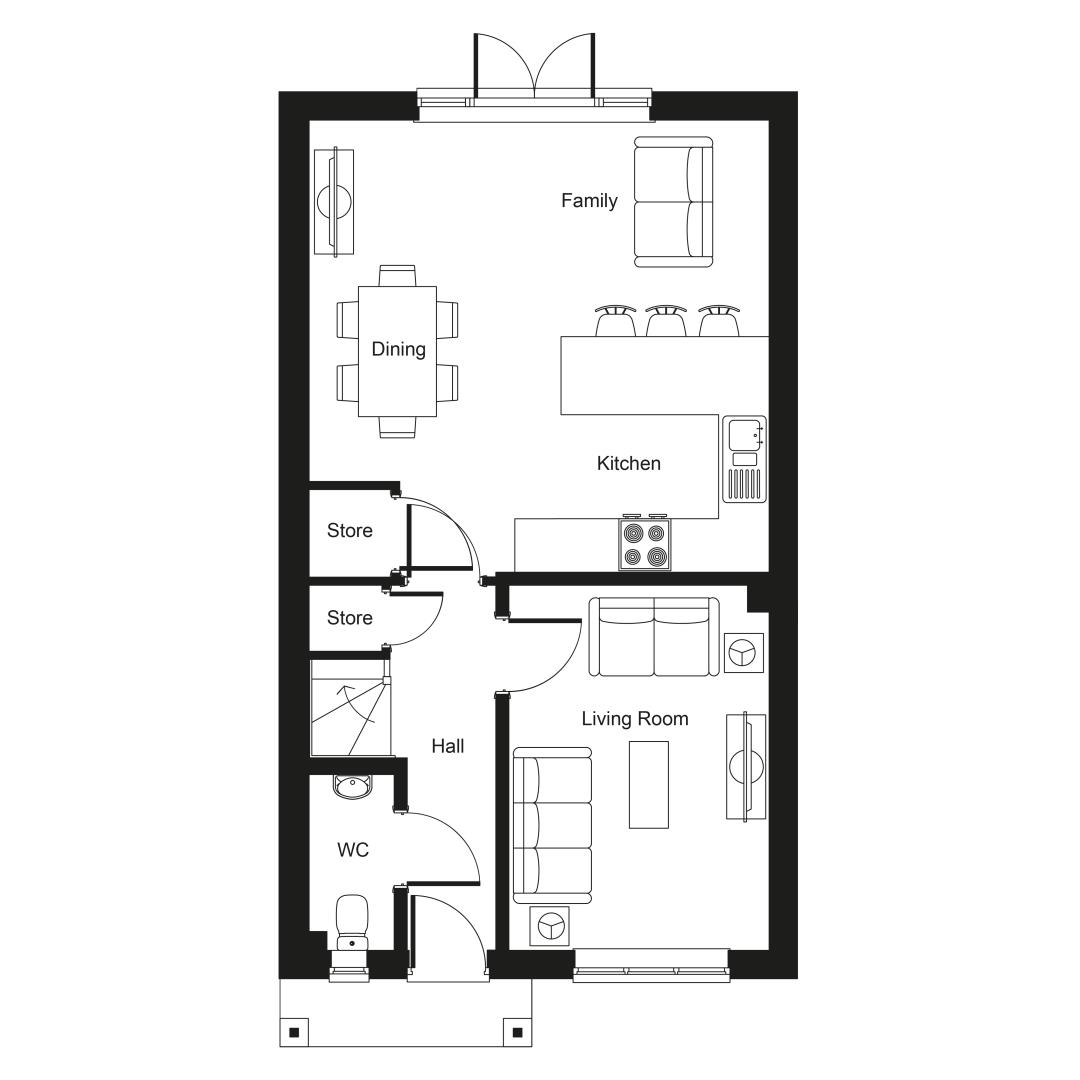
Three bedroom semi-detached family home, open plan kitchen, dining & family room with French doors leading to a rear garden. Separate living room. Downstairs WC. Three spacious bedrooms, with an ensuite to the main bedroom. Large family bathroom.

Whittle Rise is Eccleston Homes' latest distinctive collection of homes. With just 23 properties in a wide range of characterful elevations, including Farmstead, Village and Arts and Crafts, across 3 character areas. It is our first development to utilise Air Source Heat Pumps. Situated on the rural belt north of Manchester, it sits in the heart of a well-connected community ideal for families, young professionals, and retirees alike.

Here at Eccleston Homes we build characterful energy efficient homes with all the innovative and contemporary features you'd expect in a modern home. We take pride in the quality of our developments and the service we offer to you. From your very first visit, to receiving your keys and beyond, we are committed to delivering you a friendly, simple and informative journey and your new home built to our highest standards.

*All incentives are development and plot specific, are subject to lender criteria and can be withdrawn at any time. Part exchange is subject to independent valuation. Please see our Sales Consultant for details.
Property Ref : 4093
Photographs
Floorplans
Print this Property
Additonal Information
Tenure: Freehold
Estimated EPC Rating: B
Council Tax Band: Not Currently Known
Max. Broadband Speed (estimated): 1000 Mbps
Mains Gas: No
Mains Water: Yes
Mains Drainage: Yes
Mains Electricity: Yes
Property Reference: 4093
GDPR: By submitting an enquiry, you consent to your information being shared with the seller of this property or the agent representing the property. Your details will only be used to respond to your enquiry and arrange viewings or provide further information.
Property Questionnaire
Tenure
All information in this property questionnaire has been provided by the vendor.
Freehold
Leasehold
Share of Freehold
Estate Management Charge (where applicable)
Lease Details:
Ground Rent
Service charge
Start Date
Duration
years
Is the Freehold owned by the Resident Association?
No
Yes
Are you aware of any impending increases?
No
Yes
Previous year's service charge?
Is the property shared ownership?
No
Yes
Who owns the freehold?
What percentage share of the property are you selling?
%
What rent do you pay for the balance?
per annum
Services
Map View
Street View
Local Info
None
All
Dentist
Doctor
Hospital
Train
Bus
Cemetery
Cinema
Gym
Bar
Restaurant
Supermarket
Energy Performance Certificate
The full EPC chart is available either by contacting the office number listed below, or by downloading the Property Brochure
Energy Efficency Rating
CURRENT
?
(0)
POTENTIAL
?
(0)
Energy Efficency Rating
Current
Potential
(92+)
A
(81 to 91)
B
(69 to 80)
C
(55 to 68)
D
(39 to 54)
E
(21 to 38)
F
(1 to 20)
G
0
0
England & Wales
EU Directive 2002/91/EC
The energy efficiency rating is a measure of the overall efficiency of a home. The higher the rating the more energy efficient the home is and the lower the fuel bills will be.
Part of.. "Whittle Rise"
A development of 23 homes in eight distinct styles, all designed for contemporary living. OUR MOBBERLEY SHOW HOME IS NOW OPEN.
Professional Contact Request Close

If you are a company representative or professional wishing to contact the vendor of this property in relation on an on-going sale, simply complete the form below. Please note that all communication is monitored and logged. No unsolicited contact is permitted.

  Request Contact
Cancel
Logging your message..
Your message and contact details have been forwarded to the Seller.
  Continue
Oops! Please try again.
  Try Again
Share this Property! Close
Whittle Rise, Birch (The Lytham) Share with all of your friends & followers using the social media options above, or with a single friend using the form below
  Share
Cancel
By clicking send you agree to our privacy policy?
Sending your friend an email..
Success! Please ask your friend to check their email.
  Continue
Oops! Please try again, or contact us and we will send your friend a printed brochure.
  Try Again
Get in Touch! Close

Have a question? Send the Seller a message and let you know when they reply

  Send
Cancel
Sending your message..
We will let you know when the Seller replies
  Continue
Oops! Please try again.
  Try Again
Book a Viewing Cancel
FORM HERE
Thursday 21st January
7:30pm > 8:00pm
Requesting your viewing..
Your appointment has been requested, but requires confirmation by the property representitive.
Thursday 21st January
7:30pm > 8:00pm
Your appointment has been confirmed.
Thursday 21st January
7:30pm > 8:00pm
We couldn't secure that appointment. Please try selecting an alternative date / time.
Continue
Back
Confirm
Continue
Back
Request a Brochure Close
Whittle Rise To receive a PDF brocure for Whittle Rise, simply fill in your details below.
  Request
Cancel
By clicking submit you agree to our privacy policy?
Sending your request..
Many thanks. Your brochure download link for Whittle Rise should arrive in your inbox shortly.
  Continue
Oops! Please try again, or contact us using the details below.
  Try Again
Mortgage Calculator Close