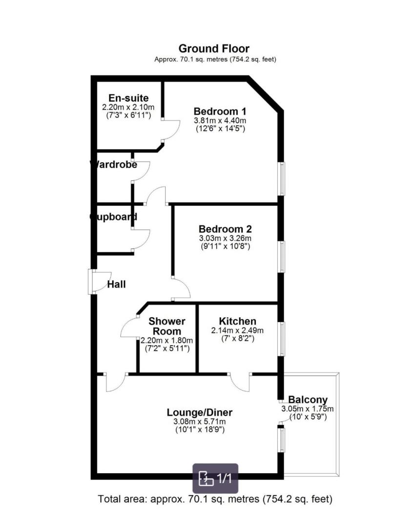
Agreed are delighted to offer for rent this substantial two bedroom ground floor apartment situated in the delightful town of Bexley. The property is near to local schools and amenities. Offering one reception room and two bathrooms, the property benefits from having electric heating and is fully double glazed. Outside is a large impressive balcony. The property has parking for two cars via residents allocated parking. Viewing in person is highly advised.
Seller Insights:
Cardamom Court was built by McCarthy & Stone in 2017 and is purpose built for retirement living for the over 60s. There is a Concierge on site and a 24-hour emergency call system provided via a personal pendant alarm and with call points in the bathrooms.
This beautifully presented unfurnished apartment features a fully fitted kitchen, lounge, balcony, 2 bedrooms one walk in wardrobe, en-suite bathroom and separate shower room. The development includes a Homeowners' lounge and landscaped gardens, buggy store, roof terrace and bike shed.
The Concierge is on site during working hours to take care of things and make you feel at home.
Cardamom Court has direct access to Bexleyheath Broadway via a secure gate, the development is right in the heart of a full array of shops and amenities as well as excellent transport links. The stunning property also includes its own allocated parking space.
It is a condition that all residents must meet the age requirements of 60 year’s
Property Ref : 337
Photographs
Floorplans
Print this Property
Property Details
Living room
Lounge/Dining Room. Spacious. Underfloor heating. Vinyl flooring. Wall mounted fireplace. Balcony.
Kitchen
Fitted with a matching range of base & eye level units. Appliances are Integrated. U-Shaped room. Underfloor heating. Ceramic floor tiles.
Bedroom One
Double Bedroom. En-suite Bathroom. Walk-in wardrobe. Spacious. Underfloor heating. Vinyl flooring. Master Bedroom.
Bathroom One
Heated towel rail. Walk-in shower. Extractor fan. Family Bathroom. Shaver point. Toilet. Washbasin with mixer tap. Spacious. Underfloor heating. Ceramic floor tiles.
Bathroom Two
Walk-in shower. Washbasin with mixer tap. Wet Room. Heated towel rail. Shaver point. En-suite Bathroom. Extractor fan. Fitted with a three piece suite. Spacious. Underfloor heating. Storage. Ceramic floor tiles.
Bedroom Two
Ground Floor. Spacious. Underfloor heating. Fitted bookcase. Vinyl flooring.
Additonal Information
EPC Rating:B
Council Tax Band:D
Mains Gas:No
Mains Water:Yes
Mains Drainage:Yes
Mains Electricity:Yes
Property Reference:337
GDPR:By submitting an enquiry, you consent to your information being shared with the seller
of this property or the agent representing the property. Your details will only be used to respond to your enquiry and arrange viewings or provide further information.
Property Questionnaire
Questionnaire
Changes Saved
Please be aware of our Terms & Conditions.
If you have already instructed another agent (or agents) to let your property, you must consider your current agreement(s) as they may be due a fee, even if you let via Agreed.
Tenure
Lettings
Services
General
Heating
Guarantees
Tenure
All information in this property questionnaire has been provided by the landlord.
Freehold
Leasehold
Share of Freehold
Estate Management Charge (where applicable)
Lease Details:
Ground Rent
Service charge
Start Date
Duration
years
Is the Freehold owned by the Resident Association?
No
Yes
Are you aware of any impending increases?
No
Yes
Previous year's service charge?
Is the property shared ownership?
No
Yes
Who owns the freehold?
What percentage share of the property are you selling?
%
What rent do you pay for the balance?
per annum
Services
Lettings
All information in this property questionnaire has been provided by the landlord.
Do you have Landlords Insurance?
No
Yes
Do you have Buildings Insurance ?
No
Yes
Do you have contents insurance for any contents that you own and will be providing during the tenancy?
No
Yes
Does any part of your property contain Asbestos?
No
Yes
Are any tenants going to be restricted access to any parts of the house, or sub-buildings? (e.g. loft)
No
Yes
Do you plan to or have you arranged for any works to be carried out which may affect the tenant's moving in date or living conditions?
No
Yes
Furnished State
Unfurnished
Part Furnished
Furnished
Please specify the furnishing level of the property
Unfurnished does not mean leaving the property entirely empty. It is usually expected that curtains, carpets and certain white goods will be included such as a fridge and cooker.
Part furnished will usually include curtains, carpets, certain white goods and larger items such as wardrobes (if there isn’t already built in storage space in the bedrooms) beds, dining table & chairs.
Renting a property Fully furnished means that the property is ready to move in. The specifics that will not be included would be down to you (as the landlord) and the tenant to negotiate.
Are you aware of any covenants, which have not been covered within this form?
No
Yes
Are you aware of any other material issues or information which relates to the property or has
anything occurred which may affect the average consumers transactional decision.
No
Yes
Services
Services
All information in this property questionnaire has been provided by the landlord.
Council Tax Band * required
Rate Payable * required
per annum
Lookup your Council Tax Information
If you don't happen to know which council tax band your property falls under, or the current rate payable, its quick and easy to look this up using the link provided here.
Please use tax band 'U' for New Build properties where the
council tax band has not yet been assigned.
Lookup Council Tax
Highest Internet Download Speed * required
Mb/s
Find the Highest Internet Download Speed Available
It's quick and easy to find the highest download speed available for your property.
Use the button provided to open the Ofcom Broadband Availability checker.
You are looking for the highest available download speed shown to be available (with a green check mark ).
Mains Electricity?
No
Yes
Economy tariff?
No
Yes
Mains Water?
No
Yes
Water Meter?
No
Yes
Mains Gas?
No
Yes
Mains Drainage?
No
Yes
Septic Tank?
No
Yes
Cesspit?
No
Yes
Are any of the above services disconnected?
No
Yes
Is the property on a private road?
No
Yes
Lettings
Heating
General
All information in this property questionnaire has been provided by the landlord.
What year was the property built?* required
If less than 10 years old, is there a valid structural warranty (NHBC etc)?
No
Yes
To your knowledge is the property a Listed Building?
No
Yes
To your knowledge are the grounds affected by a Tree Preservation Order?
No
Yes
To your knowledge is the property located in a Conservation area?
No
Yes
Are you aware of any current proposals or disputes with any individuals or public body which directly affect the property?
No
Yes
Are you aware of any Restrictive Covenants affecting the property? (ie parking, caravan storage, retirement housing, development restraints)?
No
Yes
Is your garage/ parking within your plot?
No
Yes
To your knowledge is the property of a standard construction?
No
Yes
Has your property been extended since 1 April 1991?
This question relates to Council Tax Banding where an extension could lift a property into a higher band. This increase only comes into effect upon sale of the property.
No
Yes
To your knowledge is the property affected by Japanese Knotweed or other invasive species?
Japanese Knotweed (or other invasive non-native plants) may cause serious damage to outbuildings, conservatories, drains,
garden walls, patios, paths and drives. They can be difficult to control and costly to treat, and their presence may affect
property values and deter lenders.
No
Yes
Are there any other material facts that a buyer would need to consider before deciding to consider your property?
This may include, but is not limited to:
Energy efficiency installations such as solar / PV panels or heat pump
Legal issues, such as specialist planning / lease conditions or preventions
Property related issues, such as unfinished works, build defects, non-standard construction or the absence of the appropriate approval / consent on all or part of the property
Title or boundary issues including any rights of way / footpaths crossing the property
Location issues such as flight paths or nearby development plans.
No
Yes
Are there any non-material facts that a buyer would need to consider before deciding to consider your property?
This may include, but is not limited to:
Any Feed In Tarif, Green Deal or energy scheme attached to the property
Specific timescales that a buyer may need to meet
Previous or ongoing disputes with neighbours or complaints against the property
Previous difficulty in obtaining insurance or finance
The property has been subject to a crime, burglary or an event that a viewer would need to be aware of
No
Yes
Services
Heating
Heating
All information in this property questionnaire has been provided by the landlord.
Type of Heating?
Central
Night Storage
None
What fuel does the property use?
Gas
LPG
Oil
Electric
Is fuel supply shared?
No
Yes
Is heating system in good working order?
No
Yes
Are there any defects in the plumbing / domestic hot water system (hot or cold)?
No
Yes
Do you have an immersion heater?
No
Yes
Is the immersion heater in working order?
No
Yes
Services
Guarantees
All information in this property questionnaire has been provided by the landlord.
Do you have any guarantees, with original estimates, quotations and invoices for any works carried out on the property:
Timber treatment?
No
Yes
Damp Proofing works?
No
Yes
Wiring Installation?
No
Yes
Central Heating Installation?
No
Yes
Double Glazing?
No
Yes
Heating
Map View
Street View
Local Info
None
All
Dentist
Doctor
Hospital
Train
Bus
Cemetery
Cinema
Gym
Bar
Restaurant
Supermarket
Energy Performance Certificate
The full EPC chart is available either by contacting the office number listed below, or by downloading the Property Brochure
Energy Efficency Rating
CURRENT
B
(84)
POTENTIAL
B
(84)
Environmental Impact Rating : CO2
CURRENT
?
(0)
POTENTIAL
?
(0)
Energy Efficency Rating
Current
Potential
(92+)
A
(81 to 91)
B
(69 to 80)
C
(55 to 68)
D
(39 to 54)
E
(21 to 38)
F
(1 to 20)
G
84
84
England & Wales
EU Directive 2002/91/EC
The energy efficiency rating is a measure of the overall efficiency of a home. The higher the rating the more energy efficient the home is and the lower the fuel bills will be.
Environmental Impact Rating : CO
2
Current
Potential
(92+)
A
(81 to 91)
B
(69 to 80)
C
(55 to 68)
D
(39 to 54)
E
(21 to 38)
F
(1 to 20)
G
0
0
England & Wales
EU Directive 2002/91/EC
The environmental impact rating is a measure of a home’s impact on the environment in terms of carbon dioxide (CO2) emissions. The higher the rating the less impact it has on the environment.
Agreed are delighted to offer for rent this substantial two bedroom ground floor apartment situated in the delightful town of Bexley. The property is near to local schools and amenities. Offering one reception room and two bathrooms, the property benefits from having electric heating and is fully double glazed. The accommodation comprises living room, kitchen, bedroom one, bathroom one, bathroom two and bedroom two. Outside is a large impressive balcony. The property has parking for two cars via residents allocated parking. Viewing in person is highly advised.
Retirement property only for over 60’s
Fitted Kitchen
Walk-in Wardrobe
Porter
Two Bedrooms
En-suite Bathroom
Located in the centre of town
Roof Terrace
Beautifully Presented
Property Details
Living RoomLounge/Dining Room. Spacious. Underfloor heating. Vinyl flooring. Wall mounted fireplace. Balcony.KitchenFitted with a matching range of base & eye level units. Appliances are Integrated. U-Shaped room. Underfloor heating. Ceramic floor tiles.BedroomDouble Bedroom. En-suite Bathroom. Walk-in wardrobe. Spacious. Underfloor heating. Vinyl flooring. Master Bedroom.BathroomHeated towel rail. Walk-in shower. Extractor fan. Family Bathroom. Shaver point. Toilet. Washbasin with mixer tap. Spacious. Underfloor heating. Ceramic floor tiles.BathroomWalk-in shower. Washbasin with mixer tap. Wet Room. Heated towel rail. Shaver point. En-suite Bathroom. Extractor fan. Fitted with a three piece suite. Spacious. Underfloor heating. Storage. Ceramic floor tiles.BedroomGround Floor. Spacious. Underfloor heating. Fitted bookcase. Vinyl flooring.