Offers over £540,000
Stratford-upon-Avon
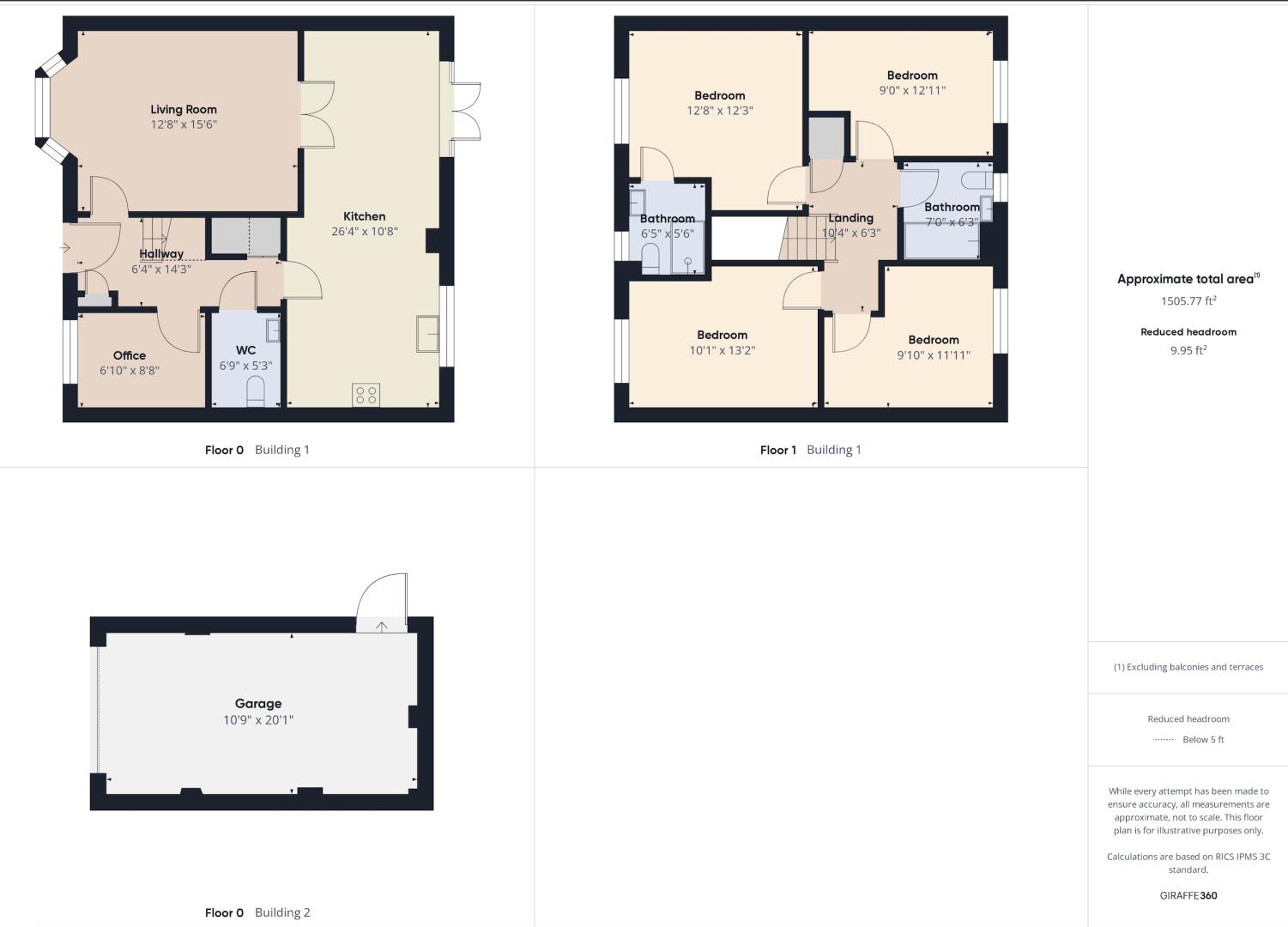
4 bed 2 bath 1 reception
Freehold

About this home

Welcome to Your Stratford-upon-Avon Dream Home — Where Exceptional Living Meets Everyday Convenience
Nestled in a thriving, family-friendly development within walking distance of Stratford-upon-Avon Parkway and the town centre, this elegant four-bedroom detached home offers so much more than just a beautiful space — it offers a lifestyle.

Only 2 years old and presented to an exceptional standard, this property is now available, due to an unexpected career opportunity for the current owners — a move they had not planned but simply could not refuse. What remains is a home filled with thoughtful upgrades, quality craftsmanship, and a genuine sense of love and investment, waiting to be passed on to its next family.

From the moment you step inside, you’ll feel the warmth and refinement that define this home. Luxurious LVT flooring flows seamlessly across the ground floor, offering comfort underfoot and effortless style, whilst upstairs, sumptuously soft, high-quality carpets lend each bedroom a cosy, tranquil feel. Every corner has been carefully enhanced, ready for you to simply unpack and start living.

The heart of the home is the stunning upgraded kitchen — a true showpiece with quartz worktops, modern shaker-style units in an elegant blue, and AEG integrated appliances. Whether you're preparing quick weekday meals or entertaining guests at weekends, the space is both beautiful and highly functional. Under-cupboard lighting adds an ambient glow, and the pull-out larder provides excellent storage for busy family life.

Natural light floods the home, accentuated by half-glazed and full-glazed internal doors, creating a bright and airy atmosphere throughout. Thoughtful touches like brushed chrome sockets, Ethernet cabling to every room for seamless connectivity, and high-quality blinds in every window reflect the care and foresight put into creating a home that is truly ready for modern living.

The four generous double bedrooms offer flexibility for growing families, guest accommodation, or even a dedicated home office. Bedroom four, already fitted with additional sockets, is perfect for those working remotely or gaming enthusiasts. Bathrooms have been elevated with rainfall showers, heated towel rails, and stylish tiling, creating spa-like spaces for daily indulgence.

Storage is abundant too, with a professionally boarded loft (NHBC certified), a well-equipped garage with additional sockets and lighting, and a ready-to-use area for a utility upgrade if desired.

Outside, the development is modern, vibrant, and thoughtfully planned, with an abundance of green space and amenities close by. It’s the ideal setting for children to explore safely or for quiet evening strolls after work. A regular on-site bus service makes getting around effortless, but many will love the opportunity to walk or cycle into the heart of Stratford-upon-Avon, where historic streets, boutique shopping, cafés, highly regarded schools, and world-famous culture await. From the rich heritage of Shakespeare’s birthplace to award-winning dining and riverside walks, the lifestyle here is truly special.

For commuters, the location is second to none — Stratford-upon-Avon Parkway Station connects you swiftly to Birmingham, Solihull, Warwick, and Leamington Spa, opening up a world of opportunity whilst maintaining a peaceful retreat to come home to.

This is more than just a house — it’s a carefully curated home that blends comfort, style, and practicality with the vibrancy and culture of one of England’s most cherished towns.

With the remainder of the NHBC warranty in place and all snagging already professionally completed, you can move in with total peace of mind, knowing that everything has been taken care of to the highest standards.
If you're seeking a home that offers modern luxury, a welcoming community, and the convenience of Stratford life right on your doorstep, this could be the one you’ve been waiting for.

Material information

Tenure Freehold
EPC Rating B
Council Tax Band F
Council Tax Rate (Standard) £3,393
Max. Broadband Speed (estimated) 18000 Mbps
Mains Gas Yes
Mains Water Yes
Mains Drainage Yes
Mains Electricity Yes
Property Reference 2507
GDPR By submitting an enquiry, you consent to your information being shared with the seller of this property or the agent representing the property. Your details will only be used to respond to your enquiry and arrange viewings or provide further information.

Floor plan

Virtual tour

Location

Show nearby: