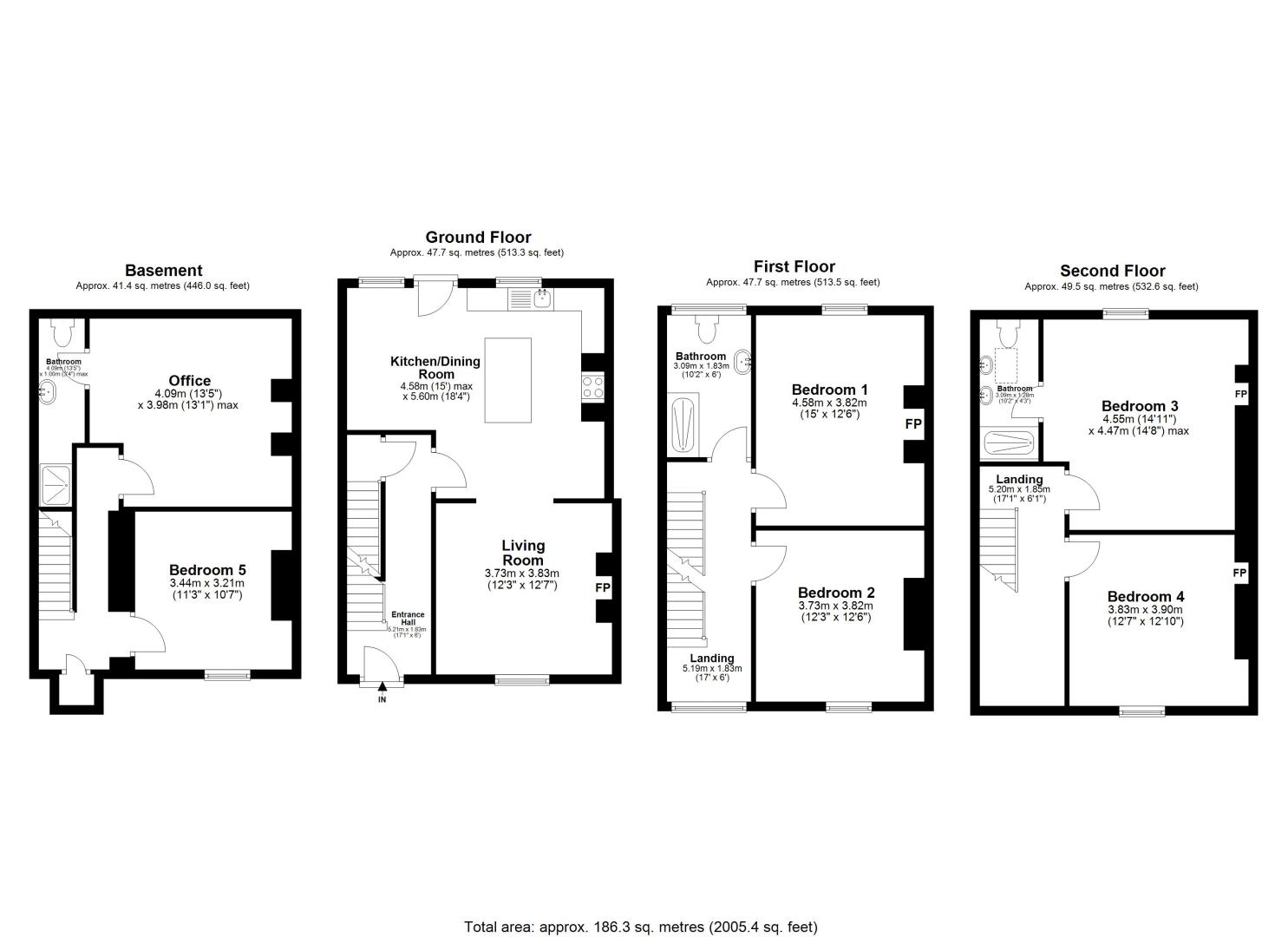
Overview
Built in the late Victorian era, the grander terraces on Blackburn Road were designed to stand out, created for Mill owners and Skilled tradespeople who wanted something altogether more impressive than the standard row. No.129 is one of only three recognised as the area’s original “prestige terraces”, giving it genuine local distinction and historical character. They are deeper, wider and taller than the standard terrace cottages, offers the kind of craftsmanship, proportions and durability that are almost impossible to replicate today.<br/><br/>Extending just over 2,000 sq ft, No.129 is almost double the size of a typical terrace property, making this a fantastic opportunity to secure a distinguished family home with a mix of old and new design. It captures warmth and personality, including thick exposed timber beams, ornate coving, elegant hardwood handrails and original fireplaces.<br/><br/>The extra‑high ceilings, generous outdoor space and four full levels of accommodation make this a superb multi‑generational home. The private lower‑ground floor offers exceptional flexibility, with one of the rooms benefiting from its own WC and shower ensuite making it ideal for a wide range of uses, whether as a private suite for an older relative, an independent space for a teenager, or a professional home-working setup for example; a beauty therapist, personal trainer, counsellor, or similar.<br/><br/>📈 Location is a major advantage. Haslingden is currently benefiting from a wave of regeneration investment, with improvements focused on the town centre, market area and key public spaces — all designed to enhance local amenities, support independent businesses and create a more vibrant community hub. Just a short drive away, Rawtenstall has already undergone a highly successful transformation, including the award‑winning bus station, upgraded town square and a thriving mix of cafés, bars and boutique shops. Rawtenstall is approximately 5 minutes from the property, giving residents easy access to one of Rossendale’s most popular and rapidly developing town centres.<br/><br/>🏫 For families with children at every stage, the location is a real advantage. Haslingden High School & Sixth Form - one of the area’s most popular and well‑regarded secondary schools - is comfortably within walking distance, making it ideal for those with teenagers transitioning to secondary school. Younger children are equally well catered for, with Haslingden Primary School and St James’ CE Primary close by, offering excellent continuity for growing families. Not forgetting your little ones, Greenhouse Farm Nursery is just down the road. A truly exceptional early‑years setting offering far more than most parents could ever expect. Rawtenstall’s wider education options, including All Saints’ and BRGS, are only a short 5–7 minute drive away, giving families access to a strong selection of schools across Rossendale.<br/><br/>🛣️ Motorway Links from BB4 5HN:<br/>Because you’re right next to the A56, you have excellent motorway access and are on the doorstep of Grane Road, one of the quickest connections in Haslingden:<br/>M66 – Manchester / M60, 2–3 minutes from BB4 5HN via the A56 southbound — becomes the M60 for Greater Manchester and the fastest route to Bury, Prestwich, Manchester, Stockport.<br/>M65 – Blackburn / Preston / Colne, 5–7 minutes via A56 northbound — ideal for commuting towards East Lancashire.<br/>M62 – Leeds / Liverpool via M66 → M60 — good for cross‑Pennine travel.<br/>M6 – North/South via M65 westbound (Preston) or M60 → M61 depending on direction.<br/><br/>Private viewings will be held across the weekend of 26th April, from Friday through to Sunday, and I would love to show you around. Call now to book your slot.
Open plan kitchen/dining area/living area
Fantastic, low maintenance, spacious multi level decked garden
Four generous double bedrooms
Parking space at rear with access to kitchen
Two extra living spaces - lower ground - with shower En-suite
Rapid access to the A56, M66 and Grane Road
Excellent access to Haslingden Primary School, St James’ CE Primary, Haslingden High School & Sixth Form and Greenhouse Farm Nursery