Sanctuary, Norton Lane, Norton
Our forthcoming development off Norton Lane of 2, 3 & 4 bedroom homes offers a peaceful and scenic setting, making it ideal for a small, close-knit community of 13 new homes. Its balance of rural charm and convenient access to nearby amenities creates an appealing lifestyle for modern homeowners.

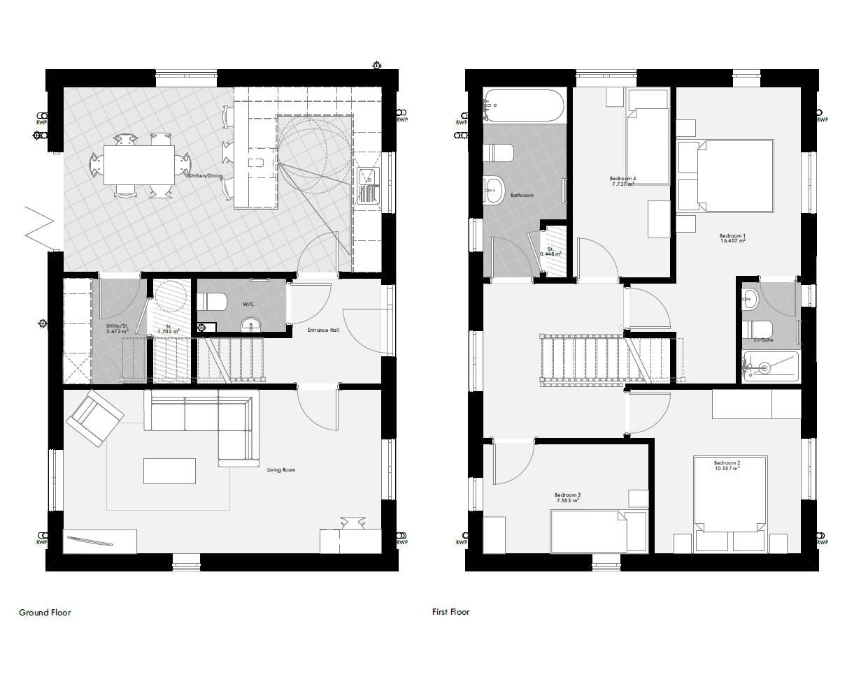
The Ingleton

Floor Plans - Ground & First Floor

_____________________________________
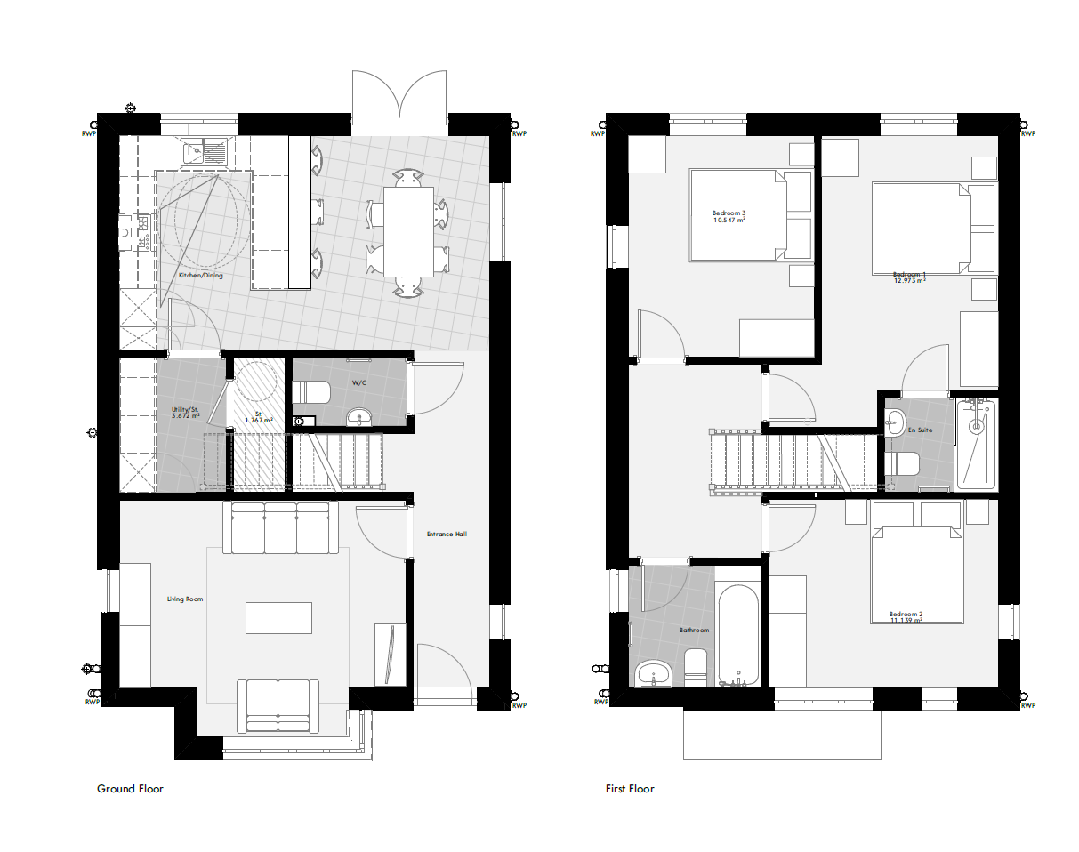
The Hawes

Floor Plans - Ground & First Floor

_____________________________________
The Grassington

Floor Plans - Ground & First Floor

_____________________________________
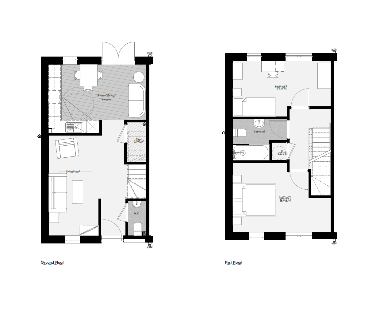
The Feetham

Floor Plans - Ground & First Floor

_____________________________________
Property specifications
Construction
Timber frame construction.
External finishing materials (e.g. brickwork), roofs, windows and doors will all be as detailed on the planning drawings. We will be happy to help you identify specific plot finishes during our discussions when you are choosing your plot.
Internal
- Bright white walls and ceilings finished with matt emulsion
- Vertical panelled, modern, white painted doors in painted timber door frames with satin brushed chrome door furniture.
- Floor coverings to kitchen area, utility, bathroom, en-suites and wc.*
- Wall tiles to bath, shower, hand basin areas *
- Kitchens with luxury laminate worktop and upstand, including integrated oven, ceramic hob, extractor, integrated 70/30 fridge freezer, dishwasher *. Utility room base units and worktop to match the kitchen ^
- Plumbing for laundry appliance ^
- Contemporary white sanitaryware with polished chrome taps and shower fittings, heated chrome towel rails.
- Separate shower cubicles where shown with low entry shower tray, glazed shower screen and thermostatically controlled shower valve. Showers to have handset shower head.
Electrical and heating
- LED downlighting to kitchen, bathrooms and en-suites. Pendant lights to other areas.
- Direct electric heating through ceiling-mounted infrared heating panels and intelligent hot water cylinder **
- Waste water heat recovery system.
- Solar panels, storage battery and electric vehicle charger **
- Wondrwall Smart Home Energy Management System incorporating intruder alarm **
- Fibre to the home broadband connection.
- Mains operated smoke and carbon monoxide alarms
- TV outlets to living room and master bedroom
Gardens and outside areas
- Block paviours to parking areas.
- Paved paths and patios
- Gardens may be turfed or seeded dependent on the season
- Fencing or boundary features depending on each plot design
- Architectural lighting to the front and rear
- External water tap and electric socket
- Garages with power, light and electrically operated door ^
* Choices and optional upgrades may be available subject to the build stage of each property.
^ May vary depending on the development layout and/or plot selected.
** Please refer to the Wondrwall brochure for further information.
Please note some images used as general marketing images are computer generated and may not be true depictions of the specification. They are for guidance only and do not in any way form part of a warranty or guarantee. We reserve the right to make alterations to the specification and elevational treatments without prior notice.
Pricing & Availabilty
| House Type / Status | Price / Plot | Accommodation | Garage |
|---|---|---|---|
|
The Ingleton Coming Soon |
£0 () Sanctuary, Norton Lane, Norton (The Ingleton) | 4 2 1 | na |
|
The Hawes Coming Soon |
£0 () Sanctuary, Norton Lane, Norton (The Hawes) | 3 2 1 | na |
|
The Grassington Coming Soon |
£0 () Sanctuary, Norton Lane, Norton (The Grassington) | 3 2 1 | na |
|
The Feetham Available |
£295,000 () Sanctuary, Norton Lane, Norton (The Feetham) | 2 1 1 | na |
Site Plan
An ideal place for family living and the good life
Welcome to Norton
Norton, Sheffield is a highly desirable suburb that perfectly balances village charm with city convenience. Located just a few miles south of Sheffield city centre, Norton is particularly popular with families, professionals, and downsizers seeking a peaceful residential setting without sacrificing access to amenities.
The area is well known for its strong sense of community, leafy streets, and attractive mix of period homes and modern developments. Norton offers excellent local schooling options, including well-regarded primary and secondary schools, which makes it a consistent favourite for families. Everyday conveniences are close at hand, with local shops, cafés, pubs, and supermarkets nearby, while the bustling centres of Woodseats and Graves Park are only a short drive away.
One of Norton’s standout features is its proximity to green space. Residents enjoy easy access to Graves Park, the largest public park in Sheffield, as well as nearby countryside walks and the edge of the Peak District, making it ideal for those who value an active, outdoor lifestyle. Despite its tranquil feel, Norton is exceptionally well connected, with regular bus routes and straightforward road links to Sheffield city centre, Chesterfield, and the wider South Yorkshire region.